Realizzare un palco con relativi servizi costituisce un pretesto per ripensare tutto il contesto della piazza di stabio.
Lo spazio attuale è caratterizzato da una cortina edilizia abbastanza compatta, dove spiccano in un angolo le facciate della chiesa parrocchiale dei santi giacomo e cristoforo e della chiesa della beata vergine del suffragio, disposte in modo quantomai insolito.
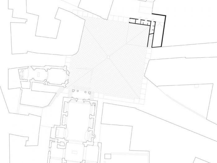
Creare due quinte all’angolo opposto è stato pertanto il primo gesto progettuale, per restituire centralità alla piazza riquadrandola, ricostruendo l’unico angolo indefinito e sfrangiato che storicamente era sempre stato edificato. Due setti in calcestruzzo a vista, contenenti rispettivamente una scala e un ascensore che conducono al nuovo ingresso al museo della civiltà contadina, costituiscono il contraltare alle facciate delle chiese e marcano lo spazio del palco. Livellando il piano della piazza di fronte alle quattro quinte si creano due spazi equivalenti ma con un diverso significato.
Il primo è un sagrato che afferisce all’istituzione religiosa delle chiese. Il secondo è un “sagrato” civile, legato alle istituzioni laiche dell’amministrazione e del museo della civiltà contadina.
Questo sito o gli strumenti terzi da questo utilizzati si avvalgono di cookie necessari al funzionamento ed utili alle finalità illustrate nella cookie policy. Se vuoi saperne di più o negare il consenso a tutti o ad alcuni cookie, consulta la cookie policy. Chiudendo questo banner, scorrendo questa pagina, cliccando su un link o proseguendo la navigazione in altra maniera, acconsenti all'uso dei cookie.