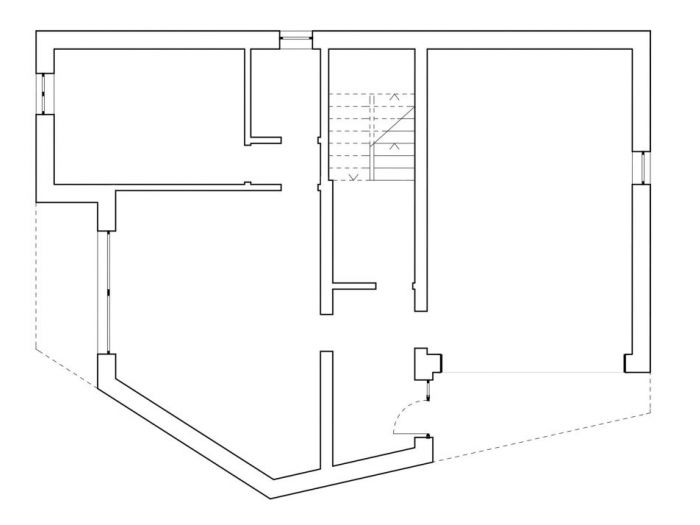
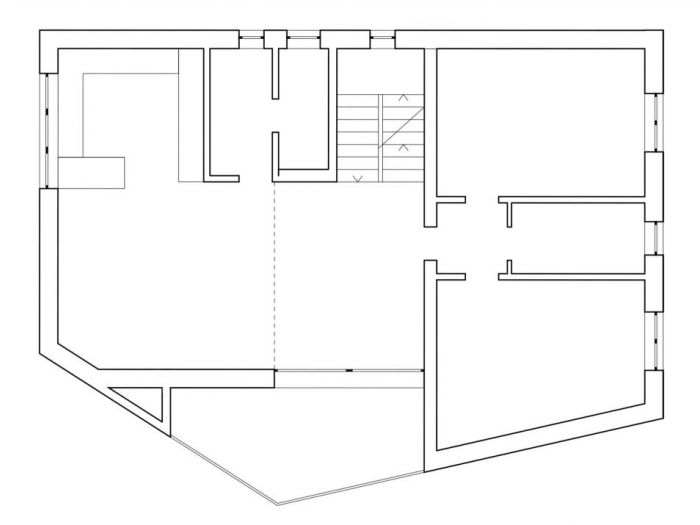
Il progetto consiste nella realizzazione di una piccola casa unifamiliare nel paese di zivignago, all’inizio della val dei mocheni. L’edificio cerca di inserirsi armoniosamente nel contesto, esprimendo tuttavia la propria contemporaneità. Il volume è una tradizionale casa a due falde. Anche i materiali, intonaco chiaro per le facciate e legno per i serramenti e i balconi, evocano le case storiche del paese realizzate in pietra e calce e con i caratteristici tamponamenti in legno traforato. Invece la pianta trapezoidale e l’articolazione delle facciate tramite sottrazione di volume conferiscono un aspetto moderno. La casa si presenta come un volume compatto con tre grandi scavi che ne caratterizzano i prospetti. Al piano terra si creano due spazi che proteggono l’ingresso principale e l’accesso al giardino privato. Al primo piano invece si produce una terrazza coperta che inquadra il castello di pergine sullo sfondo. La plasticità esterna è declinata anche all’interno. Lo spazio principale della casa è dilatato in modo da mettere in relazione la cucina e il soggiorno con il piano del sottotetto.
Questo sito o gli strumenti terzi da questo utilizzati si avvalgono di cookie necessari al funzionamento ed utili alle finalità illustrate nella cookie policy. Se vuoi saperne di più o negare il consenso a tutti o ad alcuni cookie, consulta la cookie policy. Chiudendo questo banner, scorrendo questa pagina, cliccando su un link o proseguendo la navigazione in altra maniera, acconsenti all'uso dei cookie.