Menu

Mkstudio

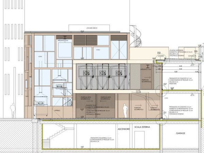
Batzenhäusl | ca’ de bezzi - Bolzano (BZ)

Numero di immagini
10
Visite ricevute
718
Like ricevuti
Ampliamento della storica trattoria “ca’de bezzi” a bolzano con un impianto di produzione di birra, locali di degustazione e “biergarten”
 
Vedi gli altri progetti
 
Vai su
Invia una richiesta di lavoro a Mkstudio
+ Allega file
Invia
 
Architetti vicino a te
Professionisti selezionati:
Cambia filtri
INVIA
Modifica filtri
Annulla
Chiedi un preventivo gratuito a Mkstudio