Menu

Dpstudio

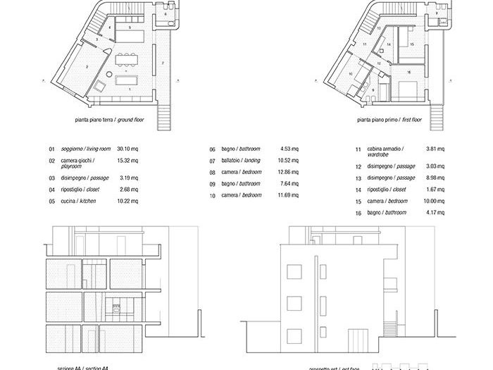
Pp house | bari | 2017 - Bari (BA)

Numero di immagini
22
Visite ricevute
533
Like ricevuti
L’intervento consiste nella ristrutturazione di un’abitazione degli anni ’70 sul limitare della città di bari. Il nuovo assetto dello spazio domestico è stato ricercato attraverso una ridefinizione del sistema distributivo interno e dell’apparato impiantistico. Il progetto ha previsto la ricollocazione dei tramezzi esistenti, in modo da individuare una fascia di ambienti di servizio lungo i lati in aderenza con i lotti limitrofi. In particolare la zona giorno è stata completamente riformulata: il ballatoio esistente al piano rialzato è stato prolungato, ricostruendo una nuova rampa d’accesso che consente l’ingresso all’abitazione direttamente nell’area centrale occupata dal soggiorno. Il disegno degli arredi interni ha permesso di approfondire l’ipotesi distributiva di progetto, radicalizzando la gerarchia degli ambienti al piano rialzato e al piano primo. Nella zona giorno è stato previsto l’inserimento di un nuovo blocco cucina, che delimita una porzione del soggiorno e un mobile multifunzione lungo la parte diametralmente opposta, mediato da un pilastro foderato che diventa il fulcro luminoso dell’area conversazione. Al piano primo invece il nucleo centrale occupato dal guardaroba e dall’area disimpegno diventa il blocco ordinatore degli ambienti della zona notte. La nuova suddivisione dell’interno risulta così rispettare un preciso criterio che prevede la ricollocazione delle funzioni lungo i bordi dell’abitazione sotto forma di blocchi che configurano una massa compatta perimetrale, integrando all’interno la scala preesistente. Questa operazione permette di ottenere un soggiorno più libero ed ampio, che è messo a sistema con il blocco cucina che funziona come nocciolo centrale dell’apparato distributivo. The project focus on a ‘70 years house restructuring in the neighbourhood of bari. The new domestic space arrangement consists of a redefinition of the interior distribution system and it purposes a new configuration of the plant strucuture. The intervention applies a new location of the existing room partitions, in order to distinguish a sequence of services room, beside the neighboring lots. In particular, the living zone was completely rethinked so as to facilitate the house entry; the existing landing , on the upper level, it has been extended, rebuilding new stairs which enable a house entry by the central area (the living room). The interior furniture design has allowed to deepen the project distribution purpose, reinforcing the room hierarchy on the ground floor and on the first floor.it has been setted a new kitchen block that delimits a part of the living room and a multifunctional piece of furniture across the opposite side, brokered by a covered pillar which becomes a light object of the conversation area. Instead, on the first floor, the central core composed by the disengagement area and the wardrobe, becomes the night rooms ordering block. The new interior splitting reflects the idea which considers to arrange the functional spaces to the house edge treating them as blocks that configure compact volumes and integrating the pre-existing stairs into the service system. These action allows to obtain a great and wide living room,in communication with the kitchen that works like a central core of the whole distribution system.
 
Vedi gli altri progetti
 
Vai su
Invia una richiesta di lavoro a Dpstudio
+ Allega file
Invia
 
Architetti vicino a te
Professionisti selezionati:
Cambia filtri
INVIA
Modifica filtri
Annulla
Chiedi un preventivo gratuito a Dpstudio