Menu

Dpstudio

Pm house - Bari (BA)

Numero di immagini
12
Visite ricevute
482
Like ricevuti
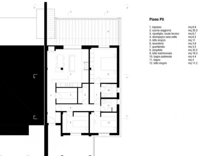
The project focuses on the refurbishment of a duplex unit of the ‘70s, located in the outskirts of sammichele di bari (a small town in apulia). The original configuration did not provide a clear distinction between the living area and sleeping area, since it was built according to the standards of the time. There were also few service spaces and a low degree of light in the living room. The strategy is to divide the site plan into three distinct parts and place a block, in the middle, equipped with facilities: the integrated kitchen, utility room, hallway bedroom, laundry room, bathroom, closet and guest bath. Within the central core, the ceiling has been lowered to include the air conditioning system. The custom-made furniture splits the space of the living room into specific areas. A full-height cabinet integrates the existing pillar and separates the dining area from the kitchen, while the bench-fireplace system identifies the conversation area. Teak panels have been used for floors and parts of integrated furniture, along with white lacquered plywood. White enamel paint for walls and ceilings. Every room of the house has a built-in lighting system that modulates and marks the space.
 
Vedi gli altri progetti
 
Vai su
Invia una richiesta di lavoro a Dpstudio
+ Allega file
Invia
 
Architetti vicino a te
Professionisti selezionati:
Cambia filtri
INVIA
Modifica filtri
Annulla
Chiedi un preventivo gratuito a Dpstudio