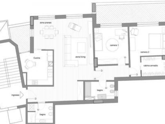
Progetto e direzione lavori della ristrutturazione dell’appartamento di circa 80mq situato al primo piano di una palazzina nel cuore del quartiere di roma 70, destinato ad una giovane coppia.
Questo sito o gli strumenti terzi da questo utilizzati si avvalgono di cookie necessari al funzionamento ed utili alle finalità illustrate nella cookie policy. Se vuoi saperne di più o negare il consenso a tutti o ad alcuni cookie, consulta la cookie policy. Chiudendo questo banner, scorrendo questa pagina, cliccando su un link o proseguendo la navigazione in altra maniera, acconsenti all'uso dei cookie.