Menu

Zero6studio

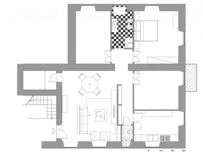
Appartamento a trastevere - Roma (RM)

Numero di immagini
10
Visite ricevute
598
Like ricevuti
Completa ristrutturazione dell’appartamento di 90 mq sito in una palazzina storica nel quartiere di trastevere.
 
Vedi gli altri progetti
 
Vai su
Invia una richiesta di lavoro a Zero6studio
+ Allega file
Invia
 
Architetti vicino a te
Professionisti selezionati:
Cambia filtri
INVIA
Modifica filtri
Annulla
Chiedi un preventivo gratuito a Zero6studio