Menu

Studio Pinelli

Ampliamento di fabbricato residenziale - Sassuolo (MO)

Numero di immagini
6
Visite ricevute
632
Like ricevuti
Archisio - Studio Pinelli - Progetto Ampliamento di fabbricato residenziale
Committente: privato Cronologia: 2003-2006 Si tratta della ristrutturazone con ampliamento di un fabbricato risalente al 1970. L'intervento sul fabbricato è consistito nella demolizione della maggior parte dell'esistente e nell'inserimento di due nuovi corpi di fabbrica. Per ampliare il piano terra e creare una ampia zona notte al primo piano è stata realizzata una struttura a torre, elemento che, contrastando con il disegno orizzontale dell'esstente, ne diventa elemento caratterizzante. Il corridoio di collegamento tra le due camere e la scala è aperto e a vista sul soggiorno, permettendo cosi' l'illuminazione di quest'ultimo anche tramite le ampie finestrature presenti sul lato ovest della torre. Oltre alla sagoma è stata modificata la colorazione del fabbricato, anche con l'utilizzo di tavelle in laterizio su parte dei prospetti.

Ristrutturazioni di fabbricati agricoli - Toano (RE)

Numero di immagini
34
Visite ricevute
787
Like ricevuti
Archisio - Studio Pinelli - Progetto Ristrutturazioni di fabbricati agricoli
Committente: privato Cronologia: 2006-2009 L'edificio attuale è frutto della ristrutturazione e cambio d'uso a fini abitativi di un fabbricato agricolo di antica origine e notevolmente stratificato. Le successive addizioni al nucleo originale avevano portato ad un complesso piuttosto disordinato e disomogeneo in termini di forme e materiali. Il progetto ha consentito di ricavare due lussuosi alloggi e vari servizi nello scrupoloso rispetto della volumetria esistente. Si è volutamente mantenuto un rigoroso rispetto per l'architettura tradizionale locale, a cominciare dai materiali: paramenti murari in sasso di fiume a vista e copertura a struttura lignea con manto in lastre di ardesia. Il disegno dei prospetti è stato reinterpretato e declinato in termini contemporanei, pur mantenendosi coerente con il linguaggio della preesistenza e del contesto generale. Anche all'interno si è scelto di valorizzare per quanto possibile gli elementi tradizionali, seppure in coesistenza con elementi moderni ed all'interno di spazi organizzati secondo logiche contemporanee.

Ristrutturazione con ampliamento di fabbricato residenziale - Sassuolo (MO)

Numero di immagini
3
Visite ricevute
667
Like ricevuti
Archisio - Studio Pinelli - Progetto Ristrutturazione con ampliamento di fabbricato residenziale
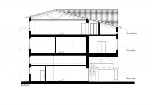
Committente: privato Cronologia: 2002 Il progetto consiste nella ristrutturazione ed ampliamento di un fabbricato risalente 1970, al fine di attualizzare la residenza con caratteristiche idonee alle mutate esigenze ed agli standard abitativi contemporanei. Al fine di ricavare un’ampia zona notte al primo piano è stato realizzato un corpo a torre, elemento che si innalza sul fabbricato esistente, che presentava una scansione orizzontale, diventandone elemento caratterizzante. I prospetti della torre, unitamente alla distribuzione interna, con corridoio affacciato sul soggiorno del piano terra, consentono anche una generosa illulminazione del soggiorno. Otteniamo in questo modo un soggiorno decisamente più ampio al piano terra, l'ingresso rimarrà pressochè invariato mentre verrà cambiata la struttura della zona pranzo-cucina. Date le ridotte dimensioni dell'autorimessa, si è inoltre operato un ampliamento del fabbricato, così da aumentare la superficie destinata a tale uso.

Restauro ex chiesa del santo spirito - Sassuolo (MO)

Numero di immagini
8
Visite ricevute
803
Like ricevuti
Archisio - Studio Pinelli - Progetto Restauro ex chiesa del santo spirito
Committente: i tulipani scrl Cronologia: 2005-2007 Un fabbricato nel cuore del centro storico di sassuolo, con un nucleo risalente al 1584, viene sottratto al degrado e all'abbandono. Il progetto di restauro e risanamento conservativo fa risorgere un pezzo di memoria storica della città, recuperandolo al pieno utilizzo e garantendo una vivibilità consona ai tempi ed alle esigenze attuali.

Casa l - Sassuolo (MO)

Numero di immagini
14
Visite ricevute
646
Like ricevuti
Archisio - Studio Pinelli - Progetto Casa l
L’incarico consiste nel progetto e d.l. Per l’edificazione di un nuovo fabbricato destinato a residenza unifamiliare. La committenza ha richiesto espressamente di valorizzare e sfruttare al meglio gli spazi verdi offerti dal lotto di pertinenza; altra esigenza fondamentale era quella di contenere per quanto possibile i tempi di esecuzione. Il percorso progettuale ha avuto inizio da un volume elementare, poi suddiviso in due blocchi sovrapposti: piano terra destinato a zona giorno e servizi, piano primo riservato alla zona notte. Tali blocchi sono stati disposti ortogonalmente l’uno rispetto all’altro. In questo modo il piano terra, caratterizzato da un rivestimento in sasso ed orientato lungo il prospiciente asse stradale, funge col proprio volume da “barriera” per il giardino retrostante; il piano primo preserva tutte gli ambienti dall’affaccio su strada, ad esclusione di un soppalco con destinazione mista; l’aggetto visibile sul prospetto ripara efficacemente l’ingresso dell’abitazione dalle intemperie. La scelta di utilizzare elementi prefabbricati in legno, oltre a rispondere alla già citata esigenza di una rapida esecuzione, garantisce un alleggerimento strutturale, consentendo di reggere il carico del blocco superiore con elementi metallici di sezione ridotta, e di liberare al piano terra l’affaccio sul verde di pertinenza da qualsiasi altro elemento opaco. La zona notte risulta in tal modo quasi leggera, sospesa nel vuoto, anche nelle ore serali. Gli involucri ed i serramenti adottati per questo progetto garantiscono un’elevata inerzia termica, ottima vivibilità all’interno del fabbricato e, unitamente agli impianti per sfruttamento di fonti rinnovabili, eccellenti prestazioni in termini di consumo energetico.

Residence contemporanea - Sassuolo (MO)

Numero di immagini
4
Visite ricevute
638
Like ricevuti
Archisio - Studio Pinelli - Progetto Residence contemporanea
Committente: immobiliare il vicolo srl Cronologia: 2004-2007 L'edificio, realizzato a seguito della demolizione di un fabbricato preesistente, sorge in una zona caratterizzata da una presenza edificatoria densa e di livello medio basso. Il lotto di pertinenza, con l'ampio giardino e le alberature ad alto fusto, risultava già in precedenza un episodio del tutto peculiare per una zona quasi esclusivamente priva di spazi di tale respiro e qualità. Con il nuovo residence si è inteso valorizzare gli aspetti positivi offerti dal sito, con un progetto che ha salvaguardato le essenze esistenti. Ciò non ha impedito di sfruttare il lotto in modo più intensivo e razionale, con la realizzazione di autorimesse interrate a servizio dei residenti. La combinazione in prospetto del calcestruzzo a vista e del legno, unitamente all'utilizzo di serramenti in alluminio, dà luogo ad un organismo edilizio estremamente regolare, moderno e razionale. Gli alloggi, organizzati su due livelli, risultano estremamente luminosi e vivibili; ognuno di essi è dotato di un giardino di pertinenza o di un'ampia terrazza. L'edificio così realizzato fissa un nuovo standard di qualità compositiva ed abitativa per il quartiere di appartenenza, con cui dovranno confrontarsi futuri interventi sull'area.

Ristrutturazione ed ampliamento di fabbricato residenziale - Sassuolo (MO)

Numero di immagini
3
Visite ricevute
610
Like ricevuti
Archisio - Studio Pinelli - Progetto Ristrutturazione ed ampliamento di fabbricato residenziale
Committente: privato Cronologia: 1999-2001 Lo stato di fatto prima dell'intervento vedeva, su un lotto di dimensioni modestissime, la presenza di un fabbricato residenziale risalente al 1960, che ospitava due alloggi distinti al piano terra ed al piano primo oltre ad un vano sottotetto. Vi era inoltre un basso servizio, di più recente costruzione, posto all'angolo sud/est del lotto e costruito in aderenza ad un fabbricato confinante. Partendo da questa situazione, il fabbricato principale è stato ampliato aggiungendo un elemento di collegamento ai locali di servizio. Il piano terra è stato completamente destinato ad autorimesse e servizi, il piano primo a residenza ed il piano secondo a residenza e servizi. Fulcro della nuova distribuzione è il vano scala in forma circolare, aperto tra i piani primo e secondo. La ridotta dimensione del lotto ha suggerito lo sviluppo di un progetto coinvolgente l'intero spazio disponibile nell'articolarsi di vuoti e pieni, affacciandosi sul giardino con terrazze che collegano idealmente interno ed esterno. Le superfici esterne pavimentate sono state ridotte al minimo, recuperando per quanto possibile superfici verdi e mantenendo le alberature esistenti. I diversi materiali utilizzati (muratura a vista, intonaco a calce e c.a.) si fondono in modo da sottolineare la linearità de corpo centrale al piano primo ed il gioco dei volumi.

Cappella privata - Albinea (RE)

Numero di immagini
7
Visite ricevute
671
Like ricevuti
Archisio - Studio Pinelli - Progetto Cappella privata
L’edificio è il risultato del recupero di un antico fabbricato rurale, cha prima dei lavori si presentava allo stato di rudere. Al momento della presa in consegna del cantiere da parte dello studio, il cantiere era allo stato grezzo, essendo state completate le strutture, i tamponamenti e la copertura. L’edificio è stato portato a termine ricavando all’interno un alloggio destinato alla vita comunitaria, con spazi di studio e riunione e con una cappella privata. Gli arredi sacri, appositamente disegnati a stretto contatto con la committenza, sono in fase di esecuzione; è invece già stato realizzato il tabernacolo in vetro. Posto in corrispondenza di una delle finestre della cappella, esso rimane punto di riferimento anche per le celebrazioni all’aperto. Gli interni sono arricchiti dalle opere del maestro sassolese borghi.

Residence lb - Sassuolo (MO)

Numero di immagini
33
Visite ricevute
748
Like ricevuti
Archisio - Studio Pinelli - Progetto Residence lb
Committente: privato Cronologia: 2007-2010 Il lotto di pertinenza, pur nelle immediate vicinanze del centro storico di sassuolo, si trova in un contesto dalle caratteristiche tipiche della periferia urbana, caratterizzato dalla presenza di edifici residenziali di scarso pregio. Si è qui intervenuto realizzando un fabbricato residenziale per nove alloggi, caratterizzati da finiture di pregio. L'edificio risalta nel contesto di appartenenza, sia per forma che per materiali utilizzati. Le limitazioni date dalle norme urbanistiche ed edilizie, insieme alla forma irregolare del lotto, sono state trasformate in punti di forza; il risultato è un manufatto volutamente di rottura rispetto al patrimonio edilizio circostante, con facciate in cui elementi marcatamente moderni e tecnologici quali le facciate ventilate rivestite in fibrocemento, coesistono con elementi più tradizionali, come i paramenti in tavelle di laterizio a vista e la pavimentazione esterna in porfido. Il limitato spazio esterno a disposizione viene restituito ai diversi alloggi per mezzo di ampie terrazze; all'interno si presentano appartamenti con spazi ampli, luminosi e suggestivi.

Privato - san michele - Sassuolo (MO)

Numero di immagini
5
Visite ricevute
670
Like ricevuti
Archisio - Studio Pinelli - Progetto Privato - san michele
Privato - san michele

Nuova edificazione di due fabbricati residenziali - Sassuolo (MO)

Numero di immagini
9
Visite ricevute
683
Like ricevuti
Archisio - Studio Pinelli - Progetto Nuova edificazione di due fabbricati residenziali
Committente: privato Cronologia: 1999-2005 Nelle immediate vicinanze del centro storico è stato edificato un fabbricato residenziale composto da due blocchi uniti tra di loro al piano interrato. Ogni blocco, caratterizzato da ingresso, ascensore e scale proprie, contiene tre unità abitative. La tipologia e il disegno dei due corpi sono organici l’uno all’altro e si integrano in un insieme che risulta a sua volta in stretta relazione con il lotto. L’impostazione progettuale è stata quella classica della zona, ove la presenza del verde è un elemento forte, con essenze arboree di alto fusto organiche alla funzione abitativa. Per questo motivo si è scelto di inglobare il verde all’interno della residenza recintandolo con un paramento che è lo stesso utilizzato per il fabbricato. Si è così inteso accentuare lo scambio tra gli spazi interni e quelli esterni, portare lo spazio esterno all’interno, rendendolo componente ambientale alla stregua dei vani costruiti; è conseguente a tale logica la presenza di terrazzi e balconate di grandi dimensioni, accessibili attraverso ampie vetrate.

Sopraelevazione di fabbricato residenziale - Sassuolo (MO)

Numero di immagini
17
Visite ricevute
538
Like ricevuti
Archisio - Studio Pinelli - Progetto Sopraelevazione di fabbricato residenziale
Committente: privato Cronologia: 2006-2008 Pur di realizzazione piuttosto recente, il fabbricato in questione necessitava di un ampliamento legato allo sviluppo familiare dell'utenza. Articolato in origine su un piano seminterrato a servizi e un piano rialzato di abitazione, l'edificio è stato sopraelevato e rivisitato al fine di ottenere una nuova unità immobiliare con accesso indipendente. Poiché una semplice sopraelevazione dell'esistente ne avrebbe snaturato le caratteristiche compositive, si è preferito ripensare tutto l'insieme puntando ad una nuova identità per il costruito. Pur mantenendo, infatti, il mattone a vista come paramento murario esterno, è stata completamente stravolta l'impostazione della copertura, con l'inserimento di nuovi volumi e terrazze, con una netta rottura rispetto al precedente sviluppo orizzontale del manufatto. Il particolare progetto architettonico e strutturale, unitamente ad una gestione di cantiere particolarmente accurata, ha consentito all'anziana coppia già residente di continuare ad occupare il proprio alloggio per tutta la durata dei lavori.

Nuovo complesso parrocchiale di san giovanni neumann - Sassuolo (MO)

Numero di immagini
13
Visite ricevute
705
Like ricevuti
Archisio - Studio Pinelli - Progetto Nuovo complesso parrocchiale di san giovanni neumann
Il progetto, risalente alla fine degli anni '70 eppure del tutto attuale, prevedeva una realizzazione da eseguire a stralci comprendente, oltre alla chiesa, le varie strutture a servizio delle attività parrocchiali. Il complesso si è sviluppato parallelamente alla crescita della comunità. Tale complesso, ed in particolare la chiesa, doveva essere elemento di riferimento anche visivo per il quartiere, staccandosi dal marasma di architetture che vi si mescolavano e sottolineando la diversità della funzione a cui questo edificio veniva destinato. La mensa eucaristica è centro fisico della chiesa; attorno ad essa ruota tutto e tutto viene compreso dall'assemblea. La sede è posta dietro l'altare, appoggiata all'abside che si protende verso l'alto e l'esterno. In questo punto la copertura raggiunge l'altezza massima, a sottolineare la dimensione verticale della trascendenza, del rapporto diretto con dio. La sede per il coro che deve guidare i canti dell'assemblea è posta lateralmente al presbiterio. L'aula ha una pavimento sagomato leggermente a cavea: in tal modo si facilita la partecipazione anche di coloro che sono in fondo alla chiesa permettendo una visibilità ottimale. Nella scelta dei materiali si è optato per quelli più facilmente collegabili alla tradizione del lavoro dell'uomo: il mattone a vista per l'esterno e parte dell'interno, il legno per la struttura di copertura, l'intonaco a calce per le parti interne, le pietre e i marmi per la pavimentazione, con inserti in ceramica. A formare un insieme organico con la chiesa, si sviluppano gli edifici sede della canonica, dell'oratorio e delle aule a servizio della parrocchia, attualmente in locazione al liceo scientifico di sassuolo.

Nuova sede ceramica ariana - Castellarano (RE)

Numero di immagini
10
Visite ricevute
615
Like ricevuti
Archisio - Studio Pinelli - Progetto Nuova sede ceramica ariana
La dinamicità, la qualità, l'eleganza della produzione ed il brand di questa azienda ceramica venivano soffocate da una immagine vecchia e stantia. L'intervento si è sviluppato nella completa ristrutturazione della vecchia palazzina uffici, con un deciso miglioramento degli aspetti funzionali e ha coinvolto anche la facciata dello stabilimento al fine di ottenere un risultato esteticamente ordinato e organico.

Ambientazioni - Sassuolo (MO)

Numero di immagini
13
Visite ricevute
566
Like ricevuti
Archisio - Studio Pinelli - Progetto Ambientazioni
Ambientazioni.

Ristrutturazione di immobile rurale - Sassuolo (MO)

Numero di immagini
19
Visite ricevute
686
Like ricevuti
Archisio - Studio Pinelli - Progetto Ristrutturazione di immobile rurale
Cronologia: 2014 L'incarico ha comportato la ristrutturazione tramite demolizione e fedele ricostruzione di un fabbricato rurale nel contesto collinare modenese, al fine di ricavare una residenza per una coppia. La zona è ricca di insediamenti agricoli, molti dei quali di origini antiche; lo stesso edificio oggetto di intervento è di origine storica. Tuttavia è altrettanto frequente, come appunto in questo caso, che tali insediamenti o manufatti risultino in stato di degrado o abbandono, o pesantemente rimaneggiati, al punto da aver perso quasi completamente i propri caratteri originali. Prima dell'inizio dei lavori il manufatto presentava soltanto alcune caratteristiche tipiche dell’architettura rurale della zona, quali la copertura lignea a due falde, la presenza di elementi in laterizio e sasso di fiume a vista, la decorazione a gelosie, il manto di copertura in coppi; essi risultavano però palesemente spuri rispetto al momento dell’edificazione, e a ciò si aggiungeva l’effetto di altre pesanti modifiche che avevano portato alla presenza di elementi in cemento armato, alla modifica del disegno dei prospetti, ecc. Il risultato era pertanto un accostamento caotico di diversi materiali, con prospetti assolutamente scialbi quando non “causali”, del tutto inadeguati a qualsiasi possibile diverso utilizzo. Lo stesso psc del resto riconosceva l’avvenuta perdita delle caratteristiche originali dell’edificio, evidenziandone l’origine antica, ma nel contempo anche la totale compromissione della matrice tipologica storica, a causa della realizzazione di tamponamenti ed ampliamenti. Inoltre l’estremità sud/ovest del fabbricato, di altra proprietà, era già stata sottoposta ad una profonda ristrutturazione, con conseguente recupero per uso abitativo con scelte, tuttavia, che sembravano aver in qualche modo tradito le caratteristiche originarie del sito, con forature e cromie difficilmente riconducibili alle peculiarità originali del fabbricato. Di conseguenza il presente progetto si è volutamente smarcato dalle scelte fatte per la frazione confinante, in modo da seguire un percorso più coerente con l’esistenza. Si è in tal modo proseguito un percorso di riqualificazione dell’intera borgata che ha già interessato alcuni degli edifici vicini. L’alloggio unifamiliare è distribuito su tre piani, di cui il piano terra ospita funzioni di servizio, il piano primo quelle semipubbliche (soggiorno e cucina), mentre il secondo piano è destinato ad un ampio studio ed alla zona notte. La sagoma dell’edificio è rimasta invariata; tutti i prospetti sono finiti in laterizio con stuccatura di calce alla cappuccina, con motivi decorativi ottenuti dall’utilizzo di diverse tessiture nella posa dei mattoni. Lo schema dei pieni e dei vuoti è stato profondamente rivisto, in modo tale da ottenere un disegno rispondente al nuovo utilizzo del fabbricato e nel contempo adeguato al contesto ed alle caratteristiche dell’edificio stesso. Il prospetto ovest, affacciato su un'area di pertinenza condivisa con altri fabbricati situati a pochi metri di distanza, deve necessariamente garantire la massima privacy. Sugli altri prospetti sono state al contrario realizzate generose aperture così da poter godere delle viste sulla campagna circostante. Si è fatto largo uso di materiali assolutamente tradizionali, seppure declinati in modo contemporaneo e certamente più ordinato e coerente rispetto al caotico accostamento esistente di laterizi, calcestruzzo a vista e sasso di fiume. La struttura portante combina l'uso del calcestruzzo e dell'acciaio; i solai sono invece in legno a vista. Grazie anche ai materiali scelti per pavimenti e rivestimenti è stato possibile ottenere un ambiente dalle caratteristiche marcatamente contemporanee, e tuttavia son evidenti richiami alle tradizioni costruttive ed architettoniche del contesto di appartenenza.

Recupero di fabbricato agricolo - Sassuolo (MO)

Numero di immagini
8
Visite ricevute
573
Like ricevuti
Archisio - Studio Pinelli - Progetto Recupero di fabbricato agricolo
Committente: privato Cronologia: 2002-2005 In un antico fabbricato colonico sono state ricavate quattro unità abitative. L'approccio progettuale ha voluto garantire il mantenimento delle caratteristiche tipologiche dell'edificio, composto da un corpo già in origine e destinato ad abitazione e da un altro con funzione stalla e fienile. I paramenti murari originali sono stati, per quanto possibile, conservati. Il nuovo porticato, che sostituisce una struttura metallica palesemente spuria, si inserisce in modo coerente e rispettoso nel complesso edilizio. La possibilità data dall'ampiezza del contenitore edilizio a disposizione ha consentito di ricavare spazi interni particolari, ampli, luminosi, con un particolare gioco di dislivelli e doppi volumi.

Privato - Sassuolo (MO)

Numero di immagini
10
Visite ricevute
576
Like ricevuti
Archisio - Studio Pinelli - Progetto Privato
Privato

Stone house - Sassuolo (MO)

Numero di immagini
12
Visite ricevute
547
Like ricevuti
Archisio - Studio Pinelli - Progetto Stone house
Questo studio per una villa monofamiliare parte dall’idea di protezione della privacy. Per tale motivo il fabbricato offre, a chi arriva, il retro della casa e i soli accessi (carrabile e pedonale): la quotidianità della vita, con le sue relazioni, avviene in un ambito filtrato, protetto. Entrando, da una apertura volutamente ridotta, il velo di protezione si squarcia e si può allargare lo sguardo verso l’esterno e il raccordo tra l’esterno e l’interno, con il portico che fa da mediatore tra gli spazi chiusi e il giardino. Tale soluzione si sposa con l’orientamento ottimale del fabbricato sull’asse est/ovest. Tale orientamento, insieme all’impiego di paramenti murari ad elevata inerzia termica, ad una impiantistica a basso consumo e con uso di fonti naturali garantisce un ottimo risultato sotto il profilo della richiesta energetica e del benessere ambientale.

Restauro della chiesa di san giorgio - Sassuolo (MO)

Numero di immagini
10
Visite ricevute
737
Like ricevuti
Archisio - Studio Pinelli - Progetto Restauro della chiesa di san giorgio
Committente: parrocchia di san giorgio Cronologia: 2000 In occasione dell'ultimo giubileo, la parrocchia di san giorgio ha deciso di procedere al restauro dell'interno del duomo; nel corso del tempo erano infatti andate perdute le colorazioni originali che sottolineavano i giochi di superfici e volumi ed il ricco apparato decorativo, a causa della tinta acriclica monocromatica utilizzata nel restauro precedente. La presenza di zone a diversa conducibilità termica aveva causato depositi di povere differenziati, inoltre la presenza di umidità aveva causato macchie, distacchi di intonaco e formazione di sali. Si è proceduto quindi alla rimozione dell'intonaco ammalorato ed alla sua sostituzione con intonaco deumidificante. Sull'estradosso delle cupole è stato steso un manto termoisolante leggero per eliminare i ponti termici. In fase di tinteggio si è poi deciso di recuperare le cromie originarie, basandosi sulle tracce di colore emerse in fase di studio. Gli altari laterali sono stati anch'essi restaurati recuperando le finiture antiche.

Restauro della cappella palatina di san francesco - Sassuolo (MO)

Numero di immagini
10
Visite ricevute
522
Like ricevuti
Archisio - Studio Pinelli - Progetto Restauro della cappella palatina di san francesco
Committente: parrocchia di san giorgio Cronologia: 1993 (progetto) – 1997 (esecuzione) La chiesa di s. Francesco sorge su piazzale della rosa, intitolato ai primi signori di sassuolo. Essa è insigne monumento seicentesco, testimonianza della volontà artistica degli estensi, che vi impiegarono architetti e pittori dell'attiguo palazzo ducale, e della secolare devozione sassolese all'antico crocifisso chiamato "santo tronco". Originariamente una chiesa dedicata alla santa croce e poi a s. Francesco, che secondo la tradizione passò da sassuolo, sorgeva sulla parte opposta del piazzale. Nell'ambito dei lavori di trasformazione della rocca voluti da francesco d'este, fu abbattuta e ricostruita di fronte come cappella palatina, a partire dal 1650, su disegno dell'architetto romano bartolomeo avanzini. Essa venne unita alle stanza del palazzo ducale tramite un collegamento, il cosiddetto "corridoio segreto" che consentiva al duca di accedervi direttamente. Nel 1667 si iniziò la costruzione del coro su progetto del loraghi, terminata nel 1779. Nel corso del xix sec. Fu edificato l'attuale campanile ideato dal lotti nel 1842. Nella chiesa vennero poi eseguiti interventi conservativi nell'ottocento e nei primi del novecento, ma non sempre in modo adeguato. Nel 1994 fu istituito un comitato per il restauro dell'edificio, composto dall'arciconfraternita del ss. Crocifisso, da rappresentanze di imprenditori, da istituzioni e cittadini, il quale ha saputo restituire al monumento l'antico valore artistico. L'aula è stata affrescata nel 1651 dai quadraturisti bolognesi b. Binchi e gg. Monti con finte architetture, festoni, tendaggi, balconate secondo il carattere illusorio dell'arte barocca presente anche nel palazzo ducale. In alto, le quattro figure femminili che reggono stemmi estensi celebrativi della grandezza del committente rappresentano le virtù della fede, pietà, fortezza, religione. Al centro della volta, il pittore francese jean boulanger, autore dei grandiosi cicli pittorici del palazzo ducale, dipinse nel 1652 l'"apoteosi di s. Francesco". Al di sopra della porta della chiesa, una finta balconata con drappo estense sta ad indicare il posto d'onore del duca, di norma di fronte all'altar maggiore. Gli scudi color oro che corrono in basso lungo le pareti, con scritte in latino e figure simboliche, sono le "imprese", obiettivi a cui deve tendere un principe cristiano. Il coro a campana ha il soffitto a cassettoni. Dietro l'altar maggiore, un dipinto risalente con buona probabilità al xvii sec. E raffigurante la madonna della ghiara venerata a reggio emilia, ricorda il pellegrinaggio compiuto da marco pio. Sotto, ante cinquecentesche dipinte all'interno con le figure di s. Giovanni evangelista e della madonna appartenevano all'antica cassa in cui era custodito il s. Tronco. L'organo dai bei fregi intagliati e tuttora funzionante, è di fattura secentesca. Venne trasferito nel 1785 in s. Francesco, dal soppresso oratorio di s. Stefano. Sotto l'organo nella curva absidale, si trovano un'acquaforte francese della seconda metà del seicento raffigurante il "corteo della chiesa trionfante" e gli stalli dipinti dei membri della confraternita.

Restauro della chiesa del carandino - Sassuolo (MO)

Numero di immagini
5
Visite ricevute
533
Like ricevuti
Archisio - Studio Pinelli - Progetto Restauro della chiesa del carandino
Restauro della chiesa del carandino

Teatro carani - Sassuolo (MO)

Numero di immagini
9
Visite ricevute
754
Like ricevuti
Archisio - Studio Pinelli - Progetto Teatro carani
Committente: teatro carani Cronologia: 1995 Edificato negli anni '30, il teatro è stato restaurato senza manipolare la matrice originaria, nel pieno rispetto anche dei contenuti estetici e formali. Tutto ciò contestualmente all'adeguamento alle normative di sicurezza sempre più stringenti susseguitesi nel tempo.

Fabbricato rurale - Sassuolo (MO)

Numero di immagini
4
Visite ricevute
520
Like ricevuti
Archisio - Studio Pinelli - Progetto Fabbricato rurale
Committente: privato Cronologia: 2008 Il progetto consiste nell’edificazione di un nuovo fabbricato rurale nella zona collinare del comune di sassuolo. Si tratta di una tipologia edilizia tipica dell’area e che prevede la presenza, all’interno dello stesso fabbricato, della funzione residenziale accanto a funzioni di servizio ad attività agricole. Il piano terra è interamente destinato al ricovero di macchine ed attrezzi; al piano primo si sviluppa un alloggio unifamiliare, accanto a spazi destinati al deposito di prodotti agricoli e ad un’acetaia. Volumi e prospetti sono stati progettati tenendo conto del linguaggio tradizionale dell’area di riferimento , con una copertura lignea a due falde e manto in coppi di laterizio, paramenti murari in sasso di fiume a vista ed intonaco a calce. L’alloggio risulta molto luminoso grazie alle generose aperture previste, che allo stesso tempo consentono una magnifica vista panoramica sulle colline circostanti.

Nuova sede target studio - Fiorano Modenese (MO)

Numero di immagini
25
Visite ricevute
1.1K
Like ricevuti
Archisio - Studio Pinelli - Progetto Nuova sede target studio
Tema del progetto era la nuova sede di target srl, azienda operativa nel settore del terzo fuoco ceramico. La richiesta era quella di coniugare adeguati spazi destinati a lavorazione e magazzino con una sede amministrativa che potesse essere ben riconoscibile ed immediatamente identificabile con l'azienda. Il lotto presentava la sfida di ricavare, oltre al fabbricato, i posti auto e le essenze arboree nel numero previsto dalla normativa comunale, con la pesante limitazione data dalla presenza di ben due metanodotti snam con relative distanze di rispetto, all'interno delle quali è vietata qualsiasi presenza fissa di edifici, alberature o veicoli. Il problema è stato superato grazie alla riduzione dei limiti di rispetto previa messa in sicurezza dei metanodotti e tramite il recupero ad uso parcheggio di uno svincolo in disuso e dell'adiacente spartitraffico. In un contesto edilizio piatto e banale, emerge oggi il prisma trasparente destinato ad uffici, con vetrate schermate da frangisole prefabbricati in cemento, nuova emergenza visiva di grande suggestione anche nelle ore serali. La palazzina si incastona nel volume produttivo; la continuità tra i due elementi è evidenziata dal rivestimento metallico che sottolinea la vocazione tecnologica dell'azienda. L'interno è caratterizzato da un luminoso atrio con cavedio a tutta altezza, su cui si affacciano gli spazi di distribuzione degli uffici ai diversi piani. Gli elementi impiantistici e strutturali sono volutamente lasciati a vista. In coerenza con l'idea di forza e contemporaneamente di leggerezza e trasparenza che il progetto intende trasmettere, il collegamento verticale tra i vari piani è dato da un vano ascensore in metallo e vetro, avvolto da una scala completamente a sbalzo in metallo. Gli uffici risultano estremamente gradevoli e luminosi, grazie alle ampie superfici trasparenti ed alle generose altezze interne. Le fotografie dell'interno sono state gentilmente concesse da zumtobel, che ha selezionato il progetto per la pubblicazione sul proprio sito istituzionale.

Edificio unifamiliare - Sassuolo (MO)

Numero di immagini
2
Visite ricevute
533
Like ricevuti
Archisio - Studio Pinelli - Progetto Edificio unifamiliare
Committente: privato Cronologia: 1994-1996 Nuova costruzione, reinterpretazione in chiave contemporanea di una tipologia edilizia tipica della zona, in particolare della frazione collinare nel cui contesto il fabbricato si inserisce. La zona è infatti ricca di antichi manufatti (abitazioni e fienili) con paramenti murari in laterizio a vista, copertura a falde a struttura lignea, doppi volumi interni. Seppure in termini contemporanei e razionali, questo linguaggio viene riproposto e valorizzato così da sottolineare il forte legame con il territorio.

Casa sul panaro - Sassuolo (MO)

Numero di immagini
12
Visite ricevute
539
Like ricevuti
Archisio - Studio Pinelli - Progetto Casa sul panaro
Essenziale nell’idea strutturale e nelle finiture: un parallelepipedo (le cui facce laterali nascondono travi reticolari) che poggia su due setti murari. In tal modo si ottiene un effetto di leggerezza che, nonostante la chiusura parziale del piano terra, conserva il proprio effetto grazie all’impiego di materiali di finitura diversi da quelli che caratterizzano gli elementi portanti. Nell’intenzione dei proprietari, è prevista una frequente presenza di ospiti giornaliera; si è data perciò notevole importanza all’accoglienza, ponendo a piano terra il soggiorno, che si offre immediatamente a chi arriva, attraverso le ampie vetrate che lo perimetrano. La zona privata si ritira al piano primo dove si colloca anche una vasta zona pranzo collegata al piano terra da una scala con pareti in vetro. L’orientamento e l’attenta scelta di materiali e tecnologie impiantistiche garantiscono un ambiente confortevole e una resa energetica di ottimo livello.

Residenza unifamiliare - Sassuolo (MO)

Numero di immagini
8
Visite ricevute
1.0K
Like ricevuti
Archisio - Studio Pinelli - Progetto Residenza unifamiliare
Committente: privato Cronologia: 2016 (progetto) Il progetto mira al rigore geometrico nella composizione, nonché alla massima semplificazione del sistema strutturale, in maniera tale da ottenere la completa libertà nella distribuzione degli ambienti. I setti portanti formano una doppia scatola, con superficie in calcestruzzo a vista per la parte rivolta su strada e finitura ad intonaco per la parte restante. A questi setti si aggiungono poi i profili che sorreggono la copertura, realizzata interamente in struttura metallica. Al piano terra si articolano gli spazi di servizio; al piano primo si trovano zona giorno e zona notte padronale, con il soggiorno a doppia altezza affacciato sul vano scala d’ingresso, estremamente luminoso e di notevole impatto. Il piano secondo, infine, ospita una zona per ospiti ed uno studio. A ciascun piano sono inoltre stati previsti generosi spazi esterni, così da poter godere appieno delle favorevoli condizioni climatiche e paesaggistiche offerte dal sito.

4 seasons - Sassuolo (MO)

Numero di immagini
9
Visite ricevute
573
Like ricevuti
Archisio - Studio Pinelli - Progetto 4 seasons
L’area di progetto è situata alla periferia di un centro urbano ai piedi dell’appennino reggiano. All’interno di un lotto di notevoli dimensioni sarà ricavata un’abitazione monofamiliare distribuita su tre livelli. Il contesto ha suggerito di orientare il lavoro in modo da consentire l’osservazione del paesaggio e delle sue variazioni nell’arco di tutte le stagioni, favorendo il rapporto con l’esterno da parte degli occupanti; tale aspetto coinvolge anche gli aspetti più strettamente tecnologici ed energetici, dal momento che le condizioni climatiche del posto risultano piuttosto estreme sia nel periodo invernale che in quello estivo. L’area di sedime confina su due lati con altrettante strade pubbliche; si è pertanto deciso di volgere gli ambienti di soggiorno verso l’area verde di proprietà, con l’utilizzo di generose aperture e di un filtro tra interno ed esterno costituito da una terrazza coperta a servizio di soggiorno e cucina. I prospetti affacciati su strade pubbliche, entrambi concepiti in modo tale da garantire maggiore riservatezza e privacy, sono differenziati in ragione del tipo di ingresso; sul lato nord si avrà infatti l’accesso carrabile al piano seminterrato, sostanzialmente ad esclusivo uso della proprietà e caratterizzato da quattro posti auto coperti, oltre che da ambienti di soggiorno aggiuntivi ed altri di servizio quali cantina e lavanderia; la discreta distanza dal confine fa sì che le camere poste al piano superiore non ricevano disturbo dalla strada prospiciente. Viceversa il prospetto est, molto più vicino al confine, si presenta sostanzialmente cieco e compatto. L’accesso pedonale all’abitazione avviene in modo progressivo: si passa dallo spazio aperto a quello semiaperto della terrazza, ed infine all’interno. Sebbene la quota e la latitudine del sito suggerissero l’utilizzo di una copertura a falde, la clientela ha posto come condizione non trattabile l’utilizzo di una copertura piana; si è cercato pertanto di valorizzare tale richiesta per quanto possibile. Il primo piano ospita così un giardino d’inverno completamente trasparente, che sarà particolarmente suggestivo soprattutto nei mesi invernali, in una zona in cui nevicate abbondanti sono piuttosto comuni. Da qui si accede poi ad un’altra ampia terrazza. Sono comunque previsti adeguati aggetti, tali da proteggere le facciate dalle precipitazioni invernali e dall’irraggiamento estivo. Il sistema strutturale è estremamente semplice e razionale: sul seminterrato in c.a., che funge da basamento, poggiano sei telai in acciaio a formare il corpo principale che racchiude tutti gli ambienti del piano terra; attorno a questo volume si sviluppano i volumi accessori del vano scala e della terrazza. Mentre il seminterrato sarà finito in c.a. A vista, a sottolineare la funzione di servizio, per le parti fuori terra verranno utilizzati principalmente materiali tipici della zona, ossia il sasso di fiume ed il legno. Verrà così ripreso il linguaggio del territorio nell’ambito di una composizione spiccatamente contemporanea. L’involucro, così come gli elementi trasparenti, sono stati scelti in modo tale da garantire il massimo comfort lungo tutto l’arco dell’anno e limitare i consumi dovuti all’utilizzo degli impianti.

America graffiti sassuolo - Sassuolo (MO)

Numero di immagini
4
Visite ricevute
653
Like ricevuti
Archisio - Studio Pinelli - Progetto America graffiti sassuolo
L'incarico è consistito nel progetto architettonico ed esecutivo e nella direzione lavori di opere di manutenzione straordinaria su di un fabbricato esistente, precedentemente adibito a supermercato. Il fabbricato ospita ora la sede sassolese del brand america graffiti, catena di ristorazione presente in tutta italia, caratterizzata da look e menù ispirati ai fast food statunitensi degli anni '50. Una volta realizzato il progetto architettonico ed esecutivo, la proprietà del marchio ha provveduto autonomamente ad attrezzare il ristorante con i propri elementi e grafiche, con elementi e stile prestabiliti e comuni a tutte le filiali del gruppo.

Centro medico reggiolo - Sassuolo (MO)

Numero di immagini
10
Visite ricevute
545
Like ricevuti
Archisio - Studio Pinelli - Progetto Centro medico reggiolo
Centro medico reggiolo.

Direzionale piazzale teggia - Sassuolo (MO)

Numero di immagini
6
Visite ricevute
579
Like ricevuti
Archisio - Studio Pinelli - Progetto Direzionale piazzale teggia
In sostituzione di una vecchia sala cinematografica chiusa da anni, si è pensato di mantenere la cortina sulla strada bucandola con una galleria che rendesse permeabile alla pedonalità il fabbricato. Questo perché si era ipotizzato di realizzare un parcheggio interrato di 250 posti auto al servizio del vecchio ospedale e del centro storico. Arrivando da fuori città, si è garantita la possibilità di posteggiare trovandosi immediatamente in pieno centro. Contemporaneamente l'area cortiliva dell'ospedale è stata restituita alla fruibilità per i convalescenti.

Ristrutturazione uffici gammadue - Sassuolo (MO)

Numero di immagini
31
Visite ricevute
568
Like ricevuti
Archisio - Studio Pinelli - Progetto Ristrutturazione uffici gammadue
Gammadue opera dal 1977 a sassuolo, nel settore del terzo fuoco ceramico. Al momento di ristrutturare la propria sede, è stata posta l'esigenza di un ambiente caldo, accogliente. Il percorso progettuale si è sviluppato tenendo conto della richiesta della committenza, senza tuttavia rinunciare ad esplorare altre possibilità che evidenziassero la continua ricerca ed innovazione che contraddistinguono il marchio. All'ingresso colpisce il contrasto tra la parete ellittica in sasso che percorre il cavedio centrale, inframmezzata dal volume trasparente del vano ascensore, ed i solai realizzati con profili metallici e lamiera grecata. Al piano terra la pavimentazione in tavelle di laterizio richiama un ambiente familiare ed accogliente, a confronto con il design moderno dei controsoffitti (appositamente ideati dallo studio) e delle divisorie fra i tavoli da riunione.

Studio dentistico - casablanca - Sassuolo (MO)

Numero di immagini
3
Visite ricevute
503
Like ricevuti
Archisio - Studio Pinelli - Progetto Studio dentistico - casablanca
L’incarico consiste nel progetto di ristrutturazione di due uffici contigui nella città di casablanca, che verranno riconvertiti in studio dentistico. Preso atto dei requisiti dettati dalla committenza, nonché dei limiti posti dalle caratteristiche degli ambienti interessati (aperture, sistema strutturale, ecc.), si è scelto di perseguire la massima continuità tra gli spazi di accoglienza e passaggio, realizzando un unico ambiente caratterizzato dall’uniformità dei materiali e dalla continuità dei percorsi e della percezione. La soluzione adottata per reception ed attesa è coerente con il concept iniziale, rispondendo nel contempo alla necessità del committente di mantenere la sala d’aspetto sotto il controllo continuo dell’addetta all’accettazione. Per gli ambienti principali è prevista un’illuminazione indiretta a led tramite tagli nel controsoffitto in cartongesso.

Collezione bagno-ceramica - Sassuolo (MO)

Numero di immagini
9
Visite ricevute
537
Like ricevuti
Archisio - Studio Pinelli - Progetto Collezione bagno-ceramica
La collezione è stata sviluppata per conto di una nota azienda del comprensorio sassolese, prevedendo l’integrazione di diversi materiali con elementi ceramici di nuova concezione appositamente disegnati.

Fresh farm retail - Sassuolo (MO)

Numero di immagini
10
Visite ricevute
617
Like ricevuti
Archisio - Studio Pinelli - Progetto Fresh farm retail
Il progetto consiste nella realizzazione della nuova sede di freshfarm.it, rivenditore attivo nel settore degli snowboard e dei relativi accessori ed abbigliamento. Poiché l’attività dell’azienda si sviluppa principalmente online, sino ad ora era stato sufficiente, per la vendita tradizionale, un negozio dalle dimensioni molto ridotte. In seguito, si è reso necessario un trasferimento all’interno di una sede più ampia, che consentisse tra l’altro di unire il punto vendita con il magazzino, situato ad una distanza di 5 km dal negozio precedente. Sin dall’avvio dell’attività il titolare ha inteso evocare, come dimostrato dal nome stesso dell’azienda, il mondo agricolo di provenienza della propria famiglia; questa è stata la base per ogni aspetto del progetto della nuova sede. Era già a disposizione della proprietà un fabbricato agricolo utilizzato in precedenza come stalla, ed ormai in disuso, localizzato in zona pedecollinare nelle vicinanze di sassuolo. Trattandosi di un’area vincolata dal punto di vista paesaggistico, non era consentito alterare la sagoma esterna del fabbricato o la scansione delle aperture; all’esterno ci si è quindi limitati alla variazione del colore, proponendo un tema decorativo semplice ma ricorrente nel contesto di riferimento e ad esso più consono, nonché ad un riordino dell’area cortiliva prospiciente il fabbricato. L’ampio spazio interno è stato invece suddiviso in due parti; la più estesa è destinata a magazzino, con l’utilizzo di un efficiente sistema di scaffalature metalliche prefabbricate, mentre la restante superficie ospita l’esposizione e vendita tradizionale, che si svolge comunque secondo logiche di e-commerce. Viene infatti esposta soltanto una parte degli articoli; grazie a terminali e tablet messi a disposizione della clientela, è possibile consultare l’intero catalogo. Una volta individuato l’articolo di interesse, l’addetto provvede immediatamente a prelevarlo dall’adiacente magazzino. Anche gli arredi sono stati scelti in coerenza con la volontà di esprimere il forte radicamento al mondo agricolo e la vocazione “green” del marchio, intesa sia come cultura contadina di riferimento, sia come rispetto per l’ambiente. Si tratta infatti per la maggior parte di oggetti “riciclati”, già in possesso del cliente in quanto recuperati dall’attività agricola ormai cessata (attrezzi vari, gabbie, aratri, ruote di trattore, ecc.) o comunque di arredi “poveri”; i restanti elementi, destinati a funzioni molto specifiche (cabine prova, espositori per tavole ed abbigliamento, ecc.) sono stati addirittura concepiti e realizzati artigianalmente dal cliente stesso. Il fabbricato è stato inoltre ristrutturato in modo da contenere al massimo i consumi energetici, con un forte investimento per la coibentazione e per un impianto fotovoltaico costituito da pannelli disposti sull’intera superficie della copertura. Il risultato è quindi un ambiente dall’atmosfera familiare, “grezza”, pienamente in linea con il contesto, ed al tempo stesso giovane e moderna, per rispondere efficacemente al target di riferimento.

Studio medico - agadir - Sassuolo (MO)

Numero di immagini
5
Visite ricevute
537
Like ricevuti
Archisio - Studio Pinelli - Progetto Studio medico - agadir
Il progetto consiste nel restyling di uno studio medico di agadir, in marocco. La committenza ha richiesto una razionalizzazione della sala destinata a reception ed attesa, senza intervenire sui paramenti murari se non a livello decorativo. La reception è stata riposizionata ni modo da effettuare un filtro all’ingresso, così che abbiano accesso alla zona di attesa soltanto i pazienti già in possesso di appuntamento, riducendo così l’affollamento all’interno di un ambiente dall’estensione relativamente ridotta e liberando gli spazi di circolazione. E’ stata inoltre effettuata fra le due principali aree dello studio medico, ossia quella riservata all’accoglienza e quella destinata all’attività vera e propria dello studio. Per il pavimento in ceramica sono state scelte due tonalità diverse della stessa collezione; per le pareti vengono invece utilizzati colori identici, ma in modo invertito, per ciascuno dei due settori.

Nuovo fabbricato residenziale - Formigine (MO)

Numero di immagini
5
Visite ricevute
532
Like ricevuti
Archisio - Studio Pinelli - Progetto Nuovo fabbricato residenziale
Committente: privato Cronologia: 2008 L’intervento riguarda la nuova costruzione di edificio ad uso civile abitazione previa parziale demolizione delle proprietà esistente. Il nuovo fabbricato in progetto consiste in un blocco composto da quattro piani, uno dei quali destinato ad autorimessa, due ad abitazione e l’ultimo a sottotetto in parte soffitta di pertinenza e in parte non accessibile. Al piano primo e secondo si suddividono le 4 nuove unità abitative previste. La nuova costruzione rompe la semplicità e l’isolamento del vecchio edificio e configura un complesso sostanzialmente unitario, strutturandosi come un blocco centrale, unito all’esistente dal blocco scala che si mostra perno sostanziale nel legame tra vecchio e nuovo. Più basso rispetto al volume principale, il blocco è coperto da una monofalda e mette in comunicazione la casa col giardino interno tramite la parete in vetrocemento. Questa è serrata da due volumi laterali in un contrappunto pieno-vuoto spezzato dai balconi degli alloggi. Un corpo a parte accoglie invece l’ascensore. E’ il corpo scala/ascensore che individua quasi tutti gli accessi: le cantine e la porzione di cortile a nord al piano terra e le unità immobiliari ai piani superiori. In particolare, al secondo livello è individuato l’accesso all’alloggio ricavato nel fabbricato esistente. La connessione tra vecchio e nuovo si esaurisce qui, dal momento che l’edificio afferma la sua originalità senza mimetismi e facili assonanze. Il rigore compositivo e l’impostazione simmetrica del vecchio edificio si stemperano sia in pianta che in alzato nella nuova costruzione. Qui è forte l’ alternarsi di positivo e negativo, di rientranze e sporgenze, di cambi di quota che modellano l’intero organismo edilizio. La modellazione si traduce sui fronti in un continuo alternarsi dei due materiali scelti, legno e intonaco, che segnano sporgenze e rientranze. I prospetti così sono risolti con un gioco di luci e ombre che si propone come nuovo elemento all’intorno circostante.

Restauro dell'ex casa pistoni - Sassuolo (MO)

Numero di immagini
5
Visite ricevute
662
Like ricevuti
Archisio - Studio Pinelli - Progetto Restauro dellex casa pistoni
Committente: privato Cronologia: 2005-2008 Nel centralissimo contesto di piazza garibaldi, il progetto ha mirato a recuperare un generale "ordine" nel fabbricato, pur mantenendo gli elementi (quali cavedi, lucerna, vani scala, ecc.), oltre ad avere caratteristiche funzionali difficilmente sostituibili, consentono la lettura storica delle varie modifiche apportate al manufatto sino ai giorni nost

Restauro e riuso dell'ex pretura di sassuolo - Sassuolo (MO)

Numero di immagini
2
Visite ricevute
539
Like ricevuti
Archisio - Studio Pinelli - Progetto Restauro e riuso dellex pretura di sassuolo
Cronologia: 2009 Il progetto è stato commissionato dall'amministrazione comunale che, in ragione del posizionamento nella centralissima piazza garibaldi nonché del notevole valore storico ed architettonico dell'edificio, intendeva insediarvi gli uffici degli amministratori comunali e la nuova sede del consiglio. Nel corso del tempo, le diverse funzioni assolte dall'edificio dell'ex pretura hanno significato profondi stravolgimenti al suo interno così da rendere difficile il riconoscimento della matrice originale. Il progetto, quindi, se da un lato si è attenuto ai caratteri storici e tipologici originali del fabbricato, dall'altro ha tenuto conto di una situazione mutata e ormai definita. Si prevede di spostare l'ingresso attuale, collocato in una posizione del tutto decentrata rispetto allo sviluppo del corpo di fabbrica interessato, nel vano al momento occupato da un negozio di abbigliamento. Ciò permetterà il dialogo diretto tra lo spazio occupato dall' urp e il futuro municipio, oltre che uno sviluppo gerarchico efficace dei percorsi e la formazione di un blocco compatto che occupa tutto il fronte porticato a destra della torre civica. In tal modo, la sede del municipio risulterà frontale e opportunamente evidente per chi accede a piazza garibaldi. Al piano terra vengono confermati gli spazi a servizio del pubblico (urp, servizi, zona ristoro), e si manterrà il locale destinato a caffetteria che costituisce oramai una presenza radicata e familiare; ai piani superiori si ritiene di dover lasciare al vano scala un respiro spaziale che sottolinei la valenza e l'importanza della sede municipale, prevedendo, al contempo, filtri di accesso costituiti da postazioni di uscieri all' arrivo in ciascun livello. Il piano primo ospiterà l'ufficio del sindaco, mentre al piano secondo sarà collocata la sala consiliare.

Nuovo asilo di cazzago - Cazzago San Martino (BS)

Numero di immagini
6
Visite ricevute
514
Like ricevuti
Archisio - Studio Pinelli - Progetto Nuovo asilo di cazzago
Il progetto è stato elaborato in occasione del concorso bandito dal comune di cazzago per la realizzazione della nuova scuola materna. La volumetria dell’edificio, anche se molto articolata, risulta estremamente semplice e compatta. Il plesso scolastico si suddivide in tre parti funzionali ben definite - scuola materna, micronido, blocco servizi - collegate tra loro da uno spazio intermedio, il salone-mensa. Un atrio all’ingresso precede il grande salone che oltre a svolgere la funzione di mensa e di locale polivalente per attività didattiche o interclasse, può accogliere genitori, bambini e insegnanti in attività extra-scolastiche. Nelle ore notturne atrio e salone si trasformano in una grande lampada che illumina l’intorno circostante. Collocato in posizione baricentrica, il salone ha un’ampia apertura verso est ed è illuminato perimetralmente da finestre a nastro collocate in prossimità della copertura. La centralità di questo spazio suggerisce lo sviluppo delle varie funzioni. L’accesso del personale addetto alla preparazione e alla somministrazione dei pasti sarà separato da quello di genitori e bambini, così come le operazioni di trasporto, di carico e scarico delle derrate alimentari. Forme, materiali e colori sono pensati per configurare ambienti calmi e omogenei, oltre che atti a evitare qualsiasi problema di sicurezza nella gestione degli spazi. Orientato longitudinalmente sull’asse est-ovest, l’edificio otterrà il maggior vantaggio dal punto di vista termico e luminoso. Sul prospetto sud-est l’edificio si scompone in una serie di volumi che abbracciano il sole e il verde. Sono le aule della scuola materna sul lato ovest affacciano invece le due sezioni di micronido, volumetricamente più compatte e in diretta comunicazione con l’esterno, con spazio esclusivo per il gioco. I servizi per il personale sono localizzati al centro del complesso in un blocco che racchiude i servizi principali. A livello tipologico e tecnologico gli obiettivi principali sono due: dotare l’edificio di un alto grado di comfort a diversi livelli e contemporaneamente perseguire il risultato di un risparmio energetico attraverso elementi passivi e attivi. La copertura delle aule è monofalda per ospitare i pannelli solari per la produzione di acqua calda e fotovoltaici per la generazione di energia elettrica in misura adeguata alle esigenze del complesso scolastico. Le murature esterne del fabbricato sono di grosso spessore al fine di garantire una elevata inerzia termica.

Nuovo centro sanitario villa claudiana - Sassuolo (MO)

Numero di immagini
6
Visite ricevute
533
Like ricevuti
Archisio - Studio Pinelli - Progetto Nuovo centro sanitario villa claudiana
Nuovo centro sanitario villa claudiana.
Vai su
Invia una richiesta di lavoro a Studio Pinelli
+ Allega file
Invia
 
Architetti vicino a te
Professionisti selezionati:
Cambia filtri
INVIA
Modifica filtri
Annulla
Chiedi un preventivo gratuito a Studio Pinelli