Menu

Studio Pinelli

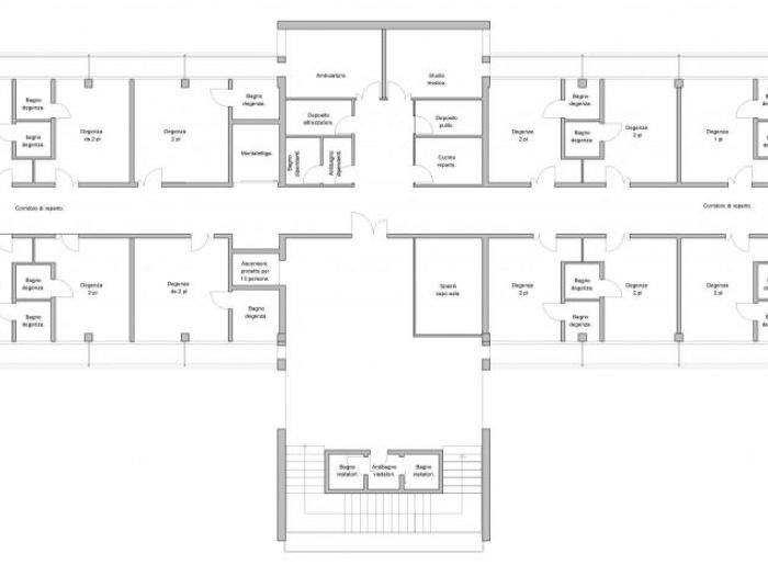
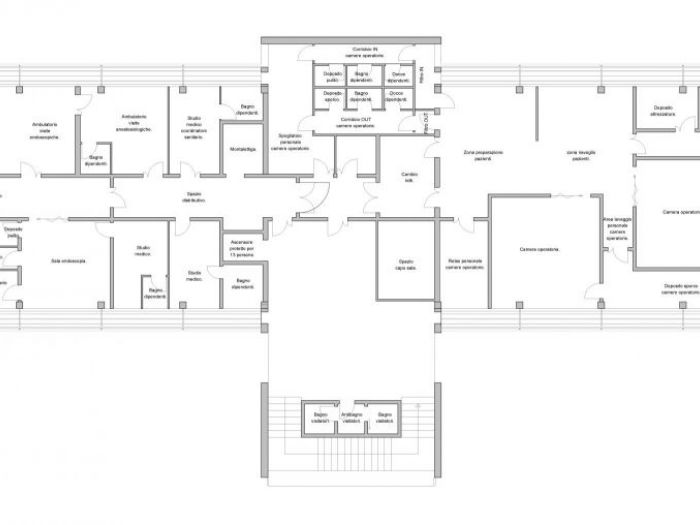
Nuovo centro sanitario villa claudiana - Sassuolo (MO)

Numero di immagini
6
Visite ricevute
534
Like ricevuti
Nuovo centro sanitario villa claudiana.
 
Vedi gli altri progetti
 
Vai su
Invia una richiesta di lavoro a Studio Pinelli
+ Allega file
Invia
 
Architetti vicino a te
Professionisti selezionati:
Cambia filtri
INVIA
Modifica filtri
Annulla
Chiedi un preventivo gratuito a Studio Pinelli