Menu

Studio Archside

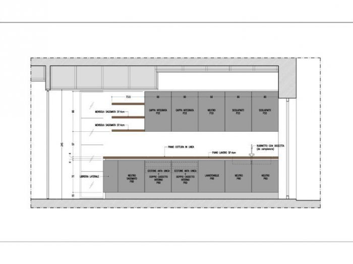
Casaletto - Roma (RM)

Numero di immagini
16
Visite ricevute
575
Like ricevuti
Ristrutturazione di un’appartamento di circa 135 mq con dotazioni ad elevata prestazione energetica.
 
Vedi gli altri progetti
 
Vai su
Invia una richiesta di lavoro a Studio Archside
+ Allega file
Invia
 
Architetti vicino a te
Professionisti selezionati:
Cambia filtri
INVIA
Modifica filtri
Annulla
Chiedi un preventivo gratuito a Studio Archside