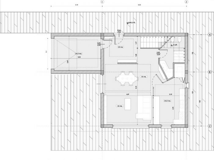
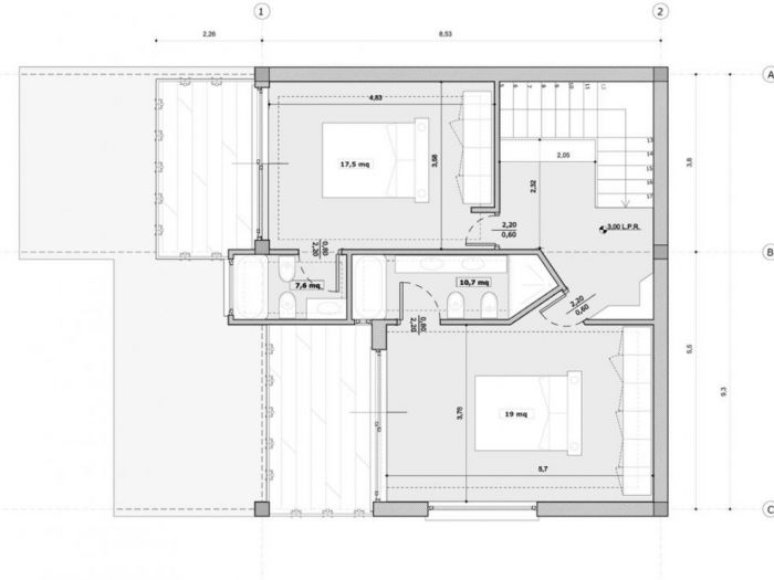
Una villa in mezzo nel verde, un giardino di circa un ettaro, che “sfuma” trasformandosi in piccolo bosco privato, così la piscina diventa ruscello ed il viale pavimentato diventa sentiero.
Il committente desiderava un ambiente naturale ma anche sì protetto e che avesse permesso ai propri figli di non dimenticare il contatto con la natura, ma con le comodità di una piccola villa urbana
Progetto: arch. Tiziano santaiti
Budget: 300’000€
Location: roma, italy
Questo sito o gli strumenti terzi da questo utilizzati si avvalgono di cookie necessari al funzionamento ed utili alle finalità illustrate nella cookie policy. Se vuoi saperne di più o negare il consenso a tutti o ad alcuni cookie, consulta la cookie policy. Chiudendo questo banner, scorrendo questa pagina, cliccando su un link o proseguendo la navigazione in altra maniera, acconsenti all'uso dei cookie.