Un progetto dalle diverse anime, con molti materiali diversi; l’ufficio, la vetrina, l’abitazione.
Obiettivo: la progettazione di uno studio – vetrina espositiva (utilizzati come campionario espositivo) sia nell’ambito strutturale che della rifinitura.
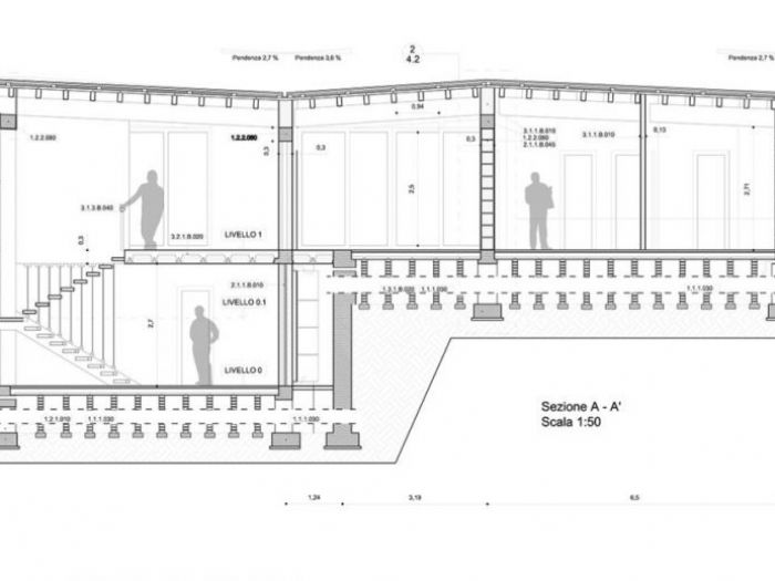
Cemento, acciaio, legno e vetro, un connubio sperimentale che sfrutta le caratteristiche dei singoli elementi. Il progetto oltre a funzionare da vetrina espositiva di materiali ed idee si focalizza, attraverso la creazione di una villa con al suo interno uno studio veterinario; sulla progettazione degli spazi capace di non influire con le diverse attività: del vivere e del lavorare.
Progetto: arch. Tiziano santaiti
Budget: –
Location: roma, italy
Questo sito o gli strumenti terzi da questo utilizzati si avvalgono di cookie necessari al funzionamento ed utili alle finalità illustrate nella cookie policy. Se vuoi saperne di più o negare il consenso a tutti o ad alcuni cookie, consulta la cookie policy. Chiudendo questo banner, scorrendo questa pagina, cliccando su un link o proseguendo la navigazione in altra maniera, acconsenti all'uso dei cookie.