Menu

Mint Studio Associato Di Architettura

Casa per vacanze costiera amalfitana - Amalfi (SA)

Numero di immagini
9
Visite ricevute
606
Like ricevuti
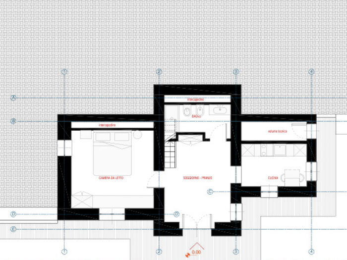
Incastonata del paesaggio della costiera amalfitana, su un terreno terrazzato coltivato a limoneto di fronte al mare, si trova questa piccola abitazione rurale recuperata e trasformata in un “rifugio”, un luogo di assoluto relax e contemplazione. Un progetto estremamente semplice dal punto di vista concettuale e formale, in cui si fondono storia ed innovazione, tecniche costruttive tradizionali e nuove tecnologie. La casa, di 45 mq, si sviluppa su un unico livello fuori terra composto da: ingresso con piccolo soppalco, cucina, servizio igienico e camera da letto. L’intento è stato quello di mantenere inalterata l’immagine esistente, caratterizzata da un volume di forma regolare con piccole aperture, e di “giocare” con lo spazio interno impiegando materiali locali, prevalentemente pietra e ceramica, rivisitandoli in chiave moderna.
 
Vedi gli altri progetti
 
Vai su
Invia una richiesta di lavoro a Mint Studio Associato Di Architettura
+ Allega file
Invia
 
Architetti vicino a te
Professionisti selezionati:
Cambia filtri
INVIA
Modifica filtri
Annulla
Chiedi un preventivo gratuito a Mint Studio Associato Di Architettura