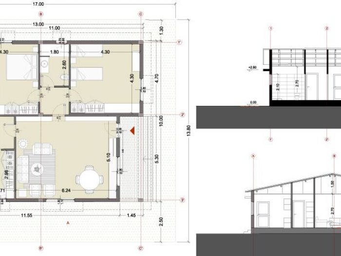
L’area, di circa 46000 mq, immersa nel verde, ospita un nuovo complesso residenziale. Il progetto si articola su due aspettii:
-la realizzazione di circa 120 abitazioni dotate di giardini privati, alcune di 130 mq per quattro persone, altre di 140 mq per sei persone;
-l’inalterabilità del tracciato stradale precedentemente pianificato e impostato su una griglia a maglia rettangolare.
Chiedi un preventivo gratuito aMint Studio Associato Di Architettura
INFORMATIVA
Questo sito o gli strumenti terzi da questo utilizzati si avvalgono di cookie necessari al funzionamento ed utili alle finalità illustrate nella cookie policy. Se vuoi saperne di più o negare il consenso a tutti o ad alcuni cookie, consulta la cookie policy. Chiudendo questo banner, scorrendo questa pagina, cliccando su un link o proseguendo la navigazione in altra maniera, acconsenti all'uso dei cookie.