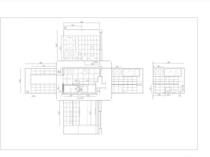
Ristrutturazione di un appartamento residenziale con diversa distribuzione degli spazi interni. L'intervento ha previsto la gestione della pratica urbanistica di c. I. L. A. , la variazione catastale con do. C. Fa. , la direzione lavori ed il collaudo finale. Gli spazi interni sono stati arredati perseguendo la funzionalità, i corretti accostamenti tra materiali, colori, luci ed arredi.
Questo sito o gli strumenti terzi da questo utilizzati si avvalgono di cookie necessari al funzionamento ed utili alle finalità illustrate nella cookie policy. Se vuoi saperne di più o negare il consenso a tutti o ad alcuni cookie, consulta la cookie policy. Chiudendo questo banner, scorrendo questa pagina, cliccando su un link o proseguendo la navigazione in altra maniera, acconsenti all'uso dei cookie.