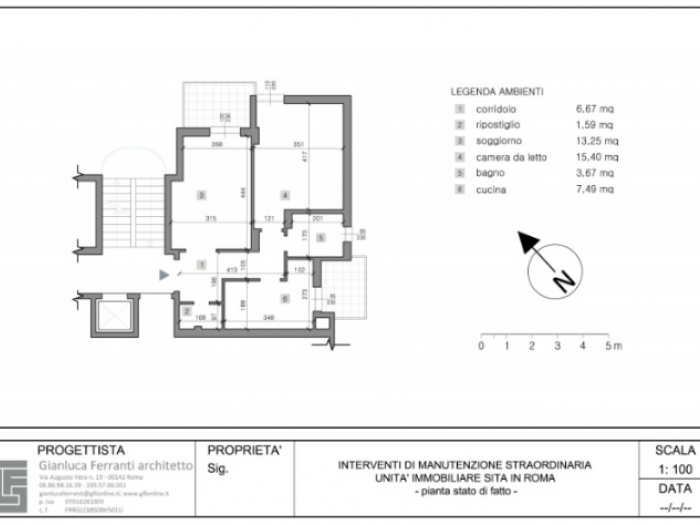
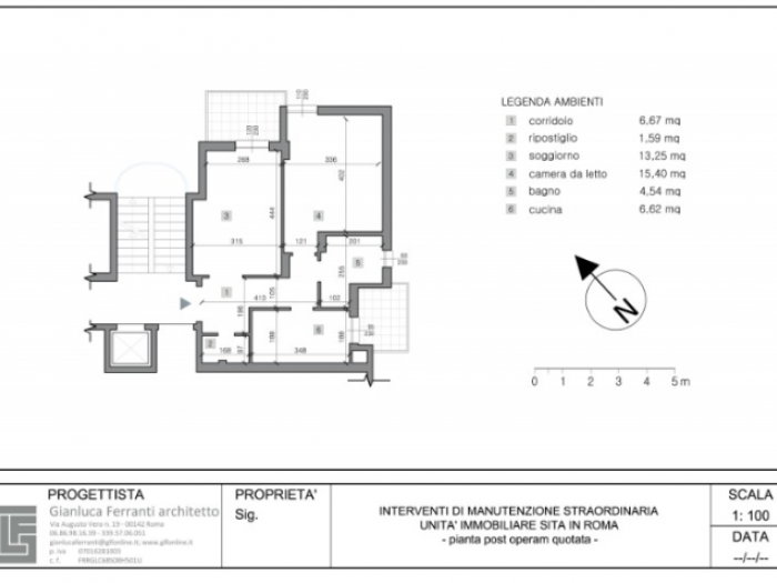
Interventi di manutenzione straordinaria all'interno di un appartamento di circa 60 mq. Il progetto prevede lo spostamento di un tramezzo con lo scopo di includere nel bagno la nicchia esistente in cucina e di ricavare una doccia.
Questo sito o gli strumenti terzi da questo utilizzati si avvalgono di cookie necessari al funzionamento ed utili alle finalità illustrate nella cookie policy. Se vuoi saperne di più o negare il consenso a tutti o ad alcuni cookie, consulta la cookie policy. Chiudendo questo banner, scorrendo questa pagina, cliccando su un link o proseguendo la navigazione in altra maniera, acconsenti all'uso dei cookie.