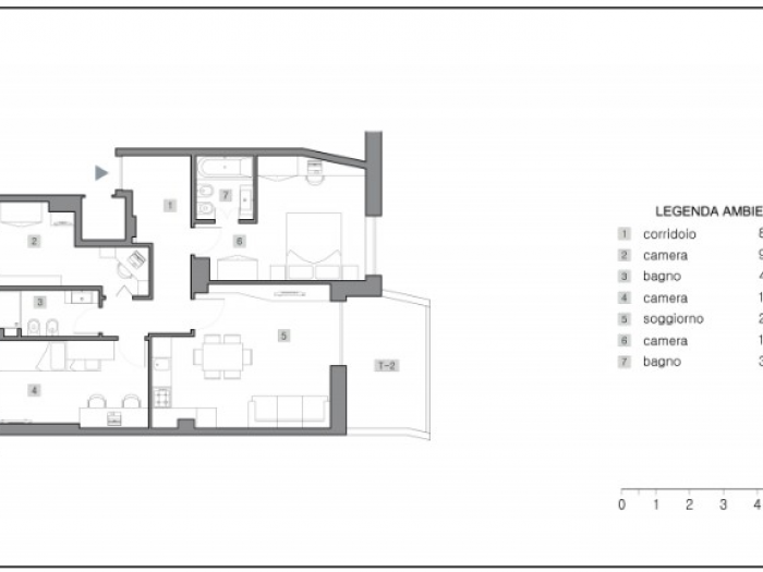
L'intervento prevede la demolizione e ricostruzione delle tramezzature esistenti al fine di ottenere una camera ed un bagno in più.
Nel progetto si elimina la cucina che diventa la terza camera da letto ed in luogo dell'attuale ripostiglio viene ricavato un angolo cottura all'interno del soggiorno.
Il secondo bagno, completo di tutti i sanitari è ad uso esclusivo della camera matrimoniale.
Progettazione, c.i.l.a., direzione dei lavori, docfa.
Questo sito o gli strumenti terzi da questo utilizzati si avvalgono di cookie necessari al funzionamento ed utili alle finalità illustrate nella cookie policy. Se vuoi saperne di più o negare il consenso a tutti o ad alcuni cookie, consulta la cookie policy. Chiudendo questo banner, scorrendo questa pagina, cliccando su un link o proseguendo la navigazione in altra maniera, acconsenti all'uso dei cookie.