Menu

Domenico Pastore

Rc house - Bari (BA)

Numero di immagini
22
Visite ricevute
631
Like ricevuti
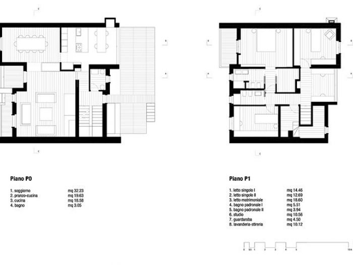
Il progetto prevede la ristrutturazione del piano rialzato e del piano primo di una abitazione unifamiliare a schiera, edificata negli anni ’70 in un residence privato a sud di bari (mungivacca). Nella configurazione originaria la distribuzione dell’area giorno, posta al piano rialzato, consisteva in un sistema articolato di setti murari, dislocati lungo una giacitura diagonale rispetto alle pareti perimetrali dell’edificio. L’assenza di una chiara definizione dei percorsi e di una gerarchizzazione degli ambienti, ha guidato le scelte progettuali verso una razionale scansione degli spazi, strutturati in funzione di una circolazione trasversale determinata dalla dislocazione nell’area centrale della casa di arredi multiuso. Attraverso un sistema ortogonale di mobili in rovere, evitando la rimozione del pavimento esistente in parquet, ad eccezione di alcune piccole integrazioni di superficie calpestabile, si è organizzato l’ambiente soggiorno delimitato dal sistema integrato panca-camino e dal guardaroba d’ingresso il cui retro diventa la credenza a servizio della sala pranzo e della cucina, ulteriormente servita da una penisola e da un sistema di contenimento alto. L’area notte al piano primo è stata invece distribuita concentrando nella parte mediana i bagni e prevedendo la realizzazione di una cabina armadio a servizio della camera padronale. Sul retro dell’abitazione, per colmare il dislivello esistente tra la quota interna e quella esterna si è prevista la realizzazione di un podio costituito da una struttura metallica in ferro zincato e pavimento in teak, perimetrato da balaustre in vetro. Dettagli del progetto Progetto rc house Progettista domenico pastore Collaboratori roberto di ciaula, giuseppe resta, francesca oliva, antonia volpone Anno 2014 Anno inizio lavori 2012 Anno fine lavori 2014 Altezza massima (m) 5 Cubatura (m³) 480 Superficie totale (m²) 180 N. Piani fuori terra 2 Status opere realizzate Tipologia recupero/ristrutturazione di edifici The refurbishment aims to redesign a terraced house unit, built in the ‘70s in a private residence in the south of bari, italy. It involves the ground floor and the first floor. The living room, in its original shape, was defined by non-orthogonal framing walls: this ambiguous condition suggested to achieve a clear design of the distribution space and to find out a hierarchy between service spaces and the rest of the house. Custom designed integrated furniture shapes the new configuration. Oak furniture, preserving the original parquet floor, extends to the fireplace area, in the living room, and integrates a built-in bench to relax. A second oak volume, the wardrobe, encloses the area to suggest a domestic feeling. The back of the wardrobe allocates other containing space functional to the dining room and the open kitchen. The bedrooms, positioned at the first floor, deal whit a central core that provides services and a walk-in closet dedicated to the suite. In the backyard, there is a huge gap between the height of the inner floor and the exterior ground. A custom designed metal podium, provided with a teak floating floor and a glass parapet, fills the gap.
 
Vedi gli altri progetti
 
Vai su
Invia una richiesta di lavoro a Domenico Pastore
+ Allega file
Invia
 
Architetti vicino a te
Professionisti selezionati:
Cambia filtri
INVIA
Modifica filtri
Annulla
Chiedi un preventivo gratuito a Domenico Pastore