Menu

Domenico Pastore

Pm house - Sammichele di Bari (BA)

Numero di immagini
32
Visite ricevute
1.0K
Like ricevuti
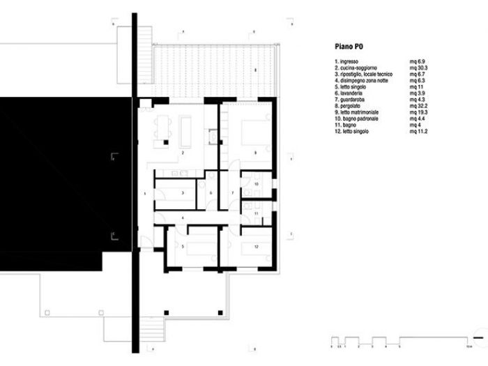
Il progetto è incentrato sulla ristrutturazione di una unità abitativa di tipo bifamiliare degli anni ’70 e collocata ai margini del centro urbano di sammichele di bari. L’assetto distributivo originario, strutturato secondo i canoni del tempo, non contemplava una chiara distinzione tra zona giorno e zona notte, inoltre presentava un numero esiguo di servizi efficienti e una scarsa illuminazione degli ambienti di soggiorno. La strategia progettuale è stata quella di tripartire la sagoma della pianta in tre fasce distinte e collocare in quella mediana un blocco di servizi attrezzato, costituito dal sistema integrato di cucina,ripostiglio,disimpegno zona notte, lavanderia, bagno, guardaroba e bagno padronale. All’interno di questa porzione centrale è stato previsto un ribassamento e all’interno del controsoffitto è stato inserito un impianto di climatizzazione canalizzato. L’ambiente di soggiorno si presenta gerarchicamente suddiviso in aree specifiche attraverso l’inserimento di arredi fissi su disegno. Un mobile alto quanto l’intero ambiente, integra al suo interno un pilastro esistente e al contempo separa l’area pranzo da quella di cottura mentre un arredo costruito dal sistema panca-camino individua l’area conversazione. I materiali scelti sono panelli di teak per pavimento e porzioni di mobili integrate ad altre in multistrato laccato di bianco e smalto bianco per pareti e soffitti. Un uso controllato del sistema di illuminazione incassato modula e caratterizza tutti gli ambienti della casa. The project focuses on the refurbishment of a duplex unit of the ‘70s, located in the outskirts of sammichele di bari (a small town in apulia). The original configuration did not provide a clear distinction between the living area and sleeping area, since it was built according to the standards of the time. There were also few service spaces and a low degree of light in the living room. The strategy is to divide the site plan into three distinct parts and place a block, in the middle, equipped with facilities: the integrated kitchen, utility room, hallway bedroom, laundry room, bathroom, closet and guest bath. Within the central core, the ceiling has been lowered to include the air conditioning system. The custom-made furniture splits the space of the living room into specific areas. A full-height cabinet integrates the existing pillar and separates the dining area from the kitchen, while the bench-fireplace system identifies the conversation area. Teak panels have been used for floors and parts of integrated furniture, along with white lacquered plywood. White enamel paint for walls and ceilings. Every room of the house has a built-in lighting system that modulates and marks the space. Dettagli del progetto Progetto casa pm Progettista domenico pastore Collaboratori giuseppe resta, marilena cici, luca bifone, tiziano de venuto Anno 2013 Anno inizio lavori 2013 Anno fine lavori 2014 Altezza massima (m) 5 Cubatura (m³) 400 Superficie totale (m²) 120 N. Piani fuori terra 1 Status opere realizzate Tipologia recupero/ristrutturazione di edifici
 
Vedi gli altri progetti
 
Vai su
Invia una richiesta di lavoro a Domenico Pastore
+ Allega file
Invia
 
Architetti vicino a te
Professionisti selezionati:
Cambia filtri
INVIA
Modifica filtri
Annulla
Chiedi un preventivo gratuito a Domenico Pastore