Menu

Domenico Pastore

Cm house - Bari (BA)

Numero di immagini
21
Visite ricevute
530
Like ricevuti
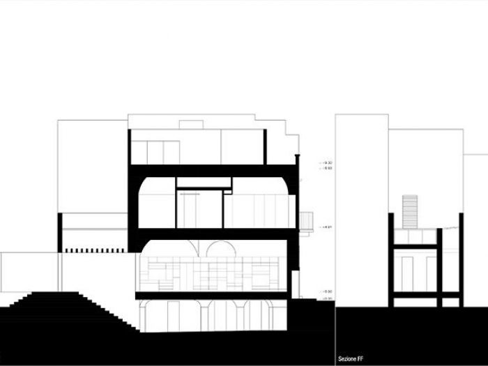
Il progetto è incentrato sul recupero e rimodellazione di una unità abitativa appartenente ad una casa bifamiliare collocata nel centro storico di sammichele di bari ed edificata nei primi del novecento. L’abitazione si sviluppa su quattro livelli compresi il piano seminterrato e il piano soffitta. Il fabbricato esistente, costituito da una struttura muraria voltata internamente, ha un fronte prospiciente via giuseppe pastore e un retro che, preceduto da un’area esterna, si affaccia su un vicolo cieco. L’esigenza di dover adattare la preesistenza alle necessità della vita contemporanea ha comportato una serie di interventi puntuali volti ridistribuire gli spazi interni ed esterni, migliorandone la percorrenza, l’accessibilità e la dotazione di servizi senza alterare l’assetto tipologico originario. Le scelte progettuali sono state: 1. Estensione della superficie di calpestio del piano terra alle aree retrostanti definite inizialmente da una tettoia e un cortile, attraverso la realizzazione di un nuovo solaio volto ad accogliere un ambiente cucina e un patio interno. 2. Ridefinizione dell’accesso al piano interrato, chiudendo l’accesso diretto su strada (in seguito occupato dai vani contatori) e realizzando una nuova rampa di scale in posizione diametralmente opposta. 3. Sostituzione della vecchia copertura del vano rimessa attraverso la realizzazione di un nuovo solaio nervato in cemento armato che, in corrispondenza delle nuove scale di accesso al piano interrato, diventa una schermatura solare per il lucernario sovrastante, realizzato al fine di illuminare naturalmente la nuova sala pranzo. 4. Inserimento di un collegamento verticale meccanizzato che attraversa i quattro piani dell’immobile. 5. Costituzione di un nuovo terrazzo di affaccio al piano primo in corrispondenza del nuovo ambiente cucina 6. Inserimento di un blocco servizi al primo piano per la definizione della nuova zona notte costituita da due camere da letto. 7. Perimetrazione del piano soffitta, adibito a lavanderia, al fine di costruire un patio di copertura. 8. Realizzazione di un mobile di arredo al piano terra, disegnato per integrare gli accessi al bagno, al locale tecnico e scale. Dettagli del progetto Progettista domenico pastore Collaboratori giuseppe resta, marilena cici Anno 2006 Anno inizio lavori 2007 Anno fine lavori 2010 Struttura prevalente muratura Committente massimiliano cici e lucia milillo Lotto (m²) 110 Altezza massima (m) 12 Cubatura (m³) 870 Superficie totale (m²) 300 N. Piani fuori terra 3 Status opere realizzate Tipologia recupero/ristrutturazione di edifici The project aims to re-design a unit of a semi-detached house in the old town centre of sammichele di bari, italy. The house, built in the early 1900s, consists of four levels with a basement and the attic. The existing construction looks onto giuseppe pastore street and its rear, preceded by an open air space, is the end of a cul-de-sac. The necessity to adapt the existing building, to the needs of the contemporary life, brought about a series of targeted interventions aimed to reshape the interior and exterior spaces, improving the distribution, the accessibility and the technologic plant without changing the original typology. 1. Extension of the surface of the ground floor to the areas behind, initially defined by a roof and a courtyard, with a new floor designed to accommodate a kitchen and a courtyard. 2. Redefinition of the access to the basement, closing a direct road access, and a new stairway in the opposite position. 3. Replacement of the old depot cover with a reinforced concrete ribbed slab that, over the stairs to the basement, becomes a sun shading for the skylight above; and so the sunlight spreads into the dining room. 4. Insertion of the elevator. 5. A new terrace overlooking the town on the first floor. 6. Addition of a block for restrooms and plants on the first floor, defining a new sleeping area with two bedrooms. 7. Definition of the attic floor, with separate laundry, in order to build a patio cover. 8. Insertion of integrated furniture on the ground floor designed to accommodate access to the bathroom, utility room and stairs.
 
Vedi gli altri progetti
 
Vai su
Invia una richiesta di lavoro a Domenico Pastore
+ Allega file
Invia
 
Architetti vicino a te
Professionisti selezionati:
Cambia filtri
INVIA
Modifica filtri
Annulla
Chiedi un preventivo gratuito a Domenico Pastore