Menu

Davide Coluzzi Daz Architect

Plesso scolastico puos di alpago - Puos d'Alpago (BL)

Numero di immagini
11
Visite ricevute
700
Like ricevuti
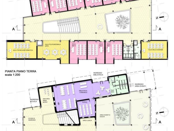
International competition. Site: puos d’alpago (bl) italy Client: comune di puos d’alpago Construction budget: 2.200.000 € Team: davide coluzzi daz architect , francesco schiavello sao architect Articolazione dell’idea progettuale e descrizione dell’opera Le scelte progettuali nascono dalla volontà di rendere la scuola parte integrante di un cluster urbano già esistente come la palestra e lo spazio per lo sport e zone da riqualificare come il centro polifunzionale perda unire gli edifici in un unico centro e dislocare i parcheggi nella zona ovest all’esterno del complesso scolastico funzionali sia alla nuova scuola che alle attività extrascolastiche. Il piano terra della nuova scuola si presenta con degli spazi molto fluidi in cui l’alunno a scuola si sente accolto e avvolto da uno spazio molto dinamico, colorato e “caldo” grazie alle finiture in legno. Nel piano terra, all’ingresso si trova la portineria e tutta l’area amministrativa, l’area degli insegnanti invece è situata in un punto cardine, centrale per un controllo discreto ma efficace sulle zone di attività. Per quanto riguarda gli spazi dedicati agli studenti si distribuiscono intorno a due elementi molto importanti: l’agora, uno spazio comune per gli eventi ed il relax ed un area “green” con alberi e verde dedicato ad attività parascolastiche. Nel piano terra oltre agli spazi sopra descritti in una prima fase sarà collocata anche la biblioteca della scuola e la biblioteca comunale con un accesso autonomo, aperta anche nelle ore extrascolastiche, in una seconda fase, con l’aumentare degli alunni, la biblioteca della scuola sarà dislocata nella biblioteca comunale e area eccedente ospiterà la mensa scolastica, nel contempo, dov’era collocata la biblioteca della scuola possiamo insediare la quarta sezione con le tre classi (ved. Schema 01). Dalla scala-tribuna / area agorà si accede al primo piano dove sono collocate le aule di studio e le aule polifunzionali, questi laboratori, tramite vetrate trasparenti e grandi porte, si affacciano in uno spazio centrale comune dove è possibile percepire il verde presente nel piano inferiore grazie ad un sistema a ballatoio. Al piano superiore si avrà uno spazio verde e molto luminoso con una vista verso le montagne ed il panorama circostante. Tutti questi ambienti sono contenuti in una struttura in cemento armato, facile da realizzare, flessibile e modulare, quindi estendibile, e con la volontà di esplicitarsi tramite un linguaggio che mira ad un’estetica “semplice” e che dialoghi con gli spazi esterni: la palestra esistente e il centro polifunzionale. Le scelte progettuali hanno dettato strategie ambientali che determinano il contenimento Energetico e dei costi di realizzazione e manutenzione in termini di ottimizzazione dei processi da affrontare e sviluppare, come il reperimento delle materie prime (legno, pietra, assemblati, etc.), montaggio (tempo e complessità), trasporto(consumi, costi e peso), sistemi energetici alimentati da fonti rinnovabili (sole, vento). Sicurezza e aspetti sismici La struttura dell’edificio prevede due livelli, di tipo modulare fondata su una platea ventilata. Ciascun modulo è composto da elementi portanti: travi e pilastri in cemento armato. Il comportamento meccanico dei materiali strutturali garantirà all’intera costruzione la rigidezza e la resistenza necessaria garantendo un’ottima resistenza globale dell’edifico in caso di sisma. Un ulteriore vantaggio della tipologia costruttiva adottata è la possibilità, in caso di danno, di essere facilmente e rapidamente riparabile. Rispondenza del progetto alle esigenze pedagogiche e alle istanze di innovazione didattica I luoghi di ritrovo informale sono considerati come spazi centrali per la formazione in termini di socializzazione. Spazi che permettono alla comunicazione sociale e didattica di proseguire anche oltre le ore curricolari. La didattica frontale diviene in questo modo solo una tra le modalità di attuazione dell’apprendimento/insegnamento. In particolare all’interno di una scuola “digitalmente aumentata” le capacità di simulazione delle “macchine digitali” posso rendere possibili anche modalità interdisciplinari difficilmente raggiungibili con metodi analogici. Riguardo le attività individuali sono stati predisposti spazi accoglienti e protetti, cave, dove gli studenti possano trovarsi nelle condizioni migliori per riflettere, leggere e dedicarsi ad attività. I laboratori rappresentano dei luoghi cardine e sono situati al piano primo. Strutturati secondo un alto grado di flessibilità e ben attrezzati, sono intesi come luoghi polifunzionali centrali nella didattica quotidiana dove recuperare la dimensione manipolativo-esperienziale dell’apprendimento anche in chiave virtuale attraverso gli strumenti digitali. L’agorà è un luogo polifunzionale per socializzare e valutare insieme il risultato dell’apprendimento anche di natura crossmediale e multi-codicale, dove poter presentare i risultati del lavoro da parte degli studenti e favorire lezioni tematiche o svolgere conferenze e attività comuni a più gruppi di lavoro. Benessere, sostenibilità energetica e ambientale le strategie ambientali Le strategie ambientali (fig.01) mostrano l’utilizzo delle risorse rinnovabili posizionate su tetto a falda sfruttando le varie pendenze sia per il posizionamento corretto dei pannelli e sia per il riciclo delle acque piovane per l’irrigazione o i servizi igienici all’edificio. Le bucature quadrangolari posizionate nello spazio centrale della nuova scuola Oltre a far introdurre luce naturale hanno una funzione di raffrescamento tramite una ventilazione naturale per effetto camino nella stagione estiva. In inverno le bucature posizionate sul tetto e le grandi vetrate funzionano da serre solari e il calore accumulato va distribuito naturalmente nei vari ambienti.
 
Vedi gli altri progetti
 
Vai su
Invia una richiesta di lavoro a Davide Coluzzi Daz Architect
+ Allega file
Invia
 
Architetti vicino a te
Professionisti selezionati:
Cambia filtri
INVIA
Modifica filtri
Annulla
Chiedi un preventivo gratuito a Davide Coluzzi Daz Architect