Menu

Davide Coluzzi Daz Architect

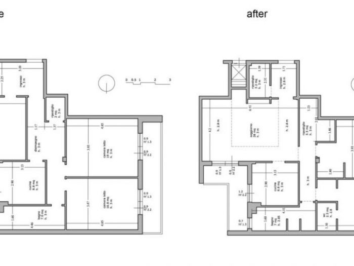
Mm flat in rome - Roma (RM)

Numero di immagini
2
Visite ricevute
451
Like ricevuti
Mm flat in rome Site: rome (italy) Area: 90 sqm Construction budget: confidential Team: davide coluzzi daz architect
 
Vedi gli altri progetti
 
Vai su
Invia una richiesta di lavoro a Davide Coluzzi Daz Architect
+ Allega file
Invia
 
Architetti vicino a te
Professionisti selezionati:
Cambia filtri
INVIA
Modifica filtri
Annulla
Chiedi un preventivo gratuito a Davide Coluzzi Daz Architect