Progetto riqualificazione area urbana di valle aurelia - Roma (RM)
6
474
0
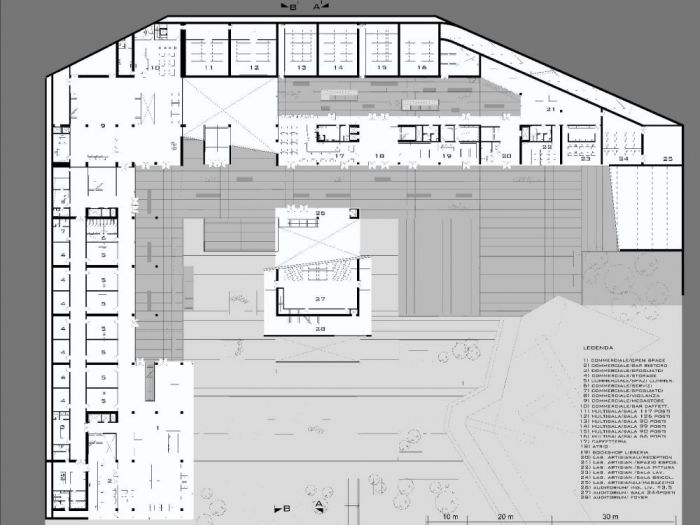
Il progetto urbano prevede la riqualificazione dell’area di valle aurelia inserita dal comune di roma all’interno dei programmi di recupero urbano ricadente nel piano di zona n. 65 pineto. l’area è caratterizzata dalla presenza di una vecchia fornace, una parrocchia in un contesto urbano fortemente degradato con carenza di servizi. Il progetto ha l’obiettivo di completare il quartiere con tutti quei servizi dei quali è carente. Il progetto ha un potere riqualificante creando una polarità a livello urbano, una nuova centralità di riferimento per il quartiere e le aree limitrofe. L’insieme degli organismi edilizi sviluppa circa 13.000 mq di spazi commerciali, circa 4.000 mq di auditorium, circa 2.000 mq di cinema e 1.500 mq di laboratori artigianali e servizi annessi alla parrocchia preesistente, oltre che parcheggi sviluppati su due livelli.
Questo sito o gli strumenti terzi da questo utilizzati si avvalgono di cookie necessari al funzionamento ed utili alle finalità illustrate nella cookie policy. Se vuoi saperne di più o negare il consenso a tutti o ad alcuni cookie, consulta la cookie policy. Chiudendo questo banner, scorrendo questa pagina, cliccando su un link o proseguendo la navigazione in altra maniera, acconsenti all'uso dei cookie.