Menu

Bomori Architetti

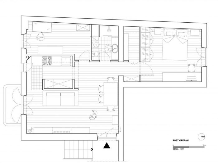
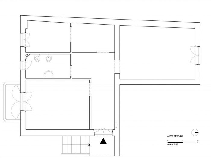
To build a home - Roma (RM)

Numero di immagini
17
Visite ricevute
555
Like ricevuti
Rome, italy Typology: apartment Client: private Size: 58 sqm Status: completed in 2017 Photography: valentina larussa
 
Vedi gli altri progetti
 
Vai su
Invia una richiesta di lavoro a Bomori Architetti
+ Allega file
Invia
 
Architetti vicino a te
Professionisti selezionati:
Cambia filtri
INVIA
Modifica filtri
Annulla
Chiedi un preventivo gratuito a Bomori Architetti