Menu

Bdf Architetti

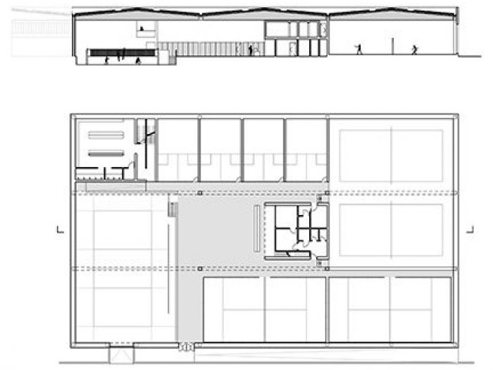
Palakendro - Triggiano (BA)

Numero di immagini
10
Visite ricevute
809
Like ricevuti
Design interni
 
Vedi gli altri progetti
 
Vai su
Invia una richiesta di lavoro a Bdf Architetti
+ Allega file
Invia
 
Architetti vicino a te
Professionisti selezionati:
Cambia filtri
INVIA
Modifica filtri
Annulla
Chiedi un preventivo gratuito a Bdf Architetti