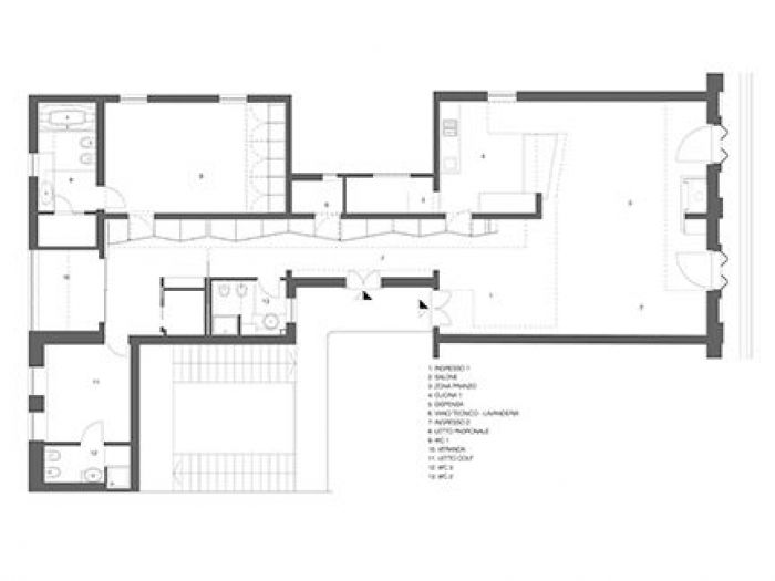
Un grande spazio affacciato sul mare da un lato e il paesaggio urbano dall'altro sviluppano la soffitta del colonna building, una costruzione liberty del 1926 sul lungomare di crollalanza. La casa recupera la tipologia del "piano nobile" della casa modernista, costituita da uno spazio pubblico unico esteso dal salone principale al salotto sul retro, di fronte al cortile interno dell'edificio. Un muro lungo 15 m è la spina dorsale di tutta la casa e separa l'area di servizio dalle aree abitate; una pelle bianca di legno si stacca da essa e diventa un pensile articolato che struttura tutto lo spazio pubblico della casa. La scelta dei materiali, limitatamente all'intonaco bianco per le pareti e al rovere bianco per il pavimento, lascia che lo spazio sia modellato dalla luce naturale attraverso effetti di luci e ombre sempre diversi durante il giorno. La casa è dotata di un sistema di automazione domestica che gestisce la luce artificiale e tutte le installazioni.
Questo sito o gli strumenti terzi da questo utilizzati si avvalgono di cookie necessari al funzionamento ed utili alle finalità illustrate nella cookie policy. Se vuoi saperne di più o negare il consenso a tutti o ad alcuni cookie, consulta la cookie policy. Chiudendo questo banner, scorrendo questa pagina, cliccando su un link o proseguendo la navigazione in altra maniera, acconsenti all'uso dei cookie.