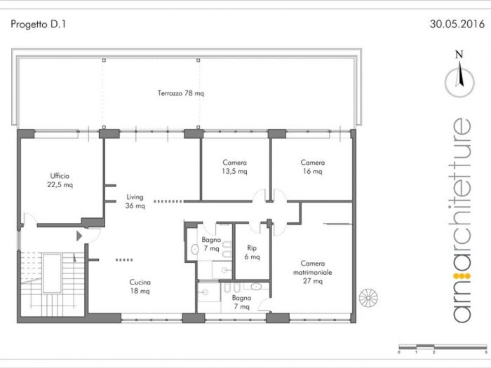
Il committente chiedeva la trasformazione di un intero piano di un edificio da uffici ad abitazione per una famiglia con due figli adolescenti. I vincoli sono stati l'esposizione, le facciate, la maglia strutturale e gli scarichi. Il progetto divide nettamente la zona giorno dalla zona notte e valorizza l'ampio terrazzo a disposizione.
Questo sito o gli strumenti terzi da questo utilizzati si avvalgono di cookie necessari al funzionamento ed utili alle finalità illustrate nella cookie policy. Se vuoi saperne di più o negare il consenso a tutti o ad alcuni cookie, consulta la cookie policy. Chiudendo questo banner, scorrendo questa pagina, cliccando su un link o proseguendo la navigazione in altra maniera, acconsenti all'uso dei cookie.