Progettazione interni per un appartamento a roma - Roma (RM)
12
645
1
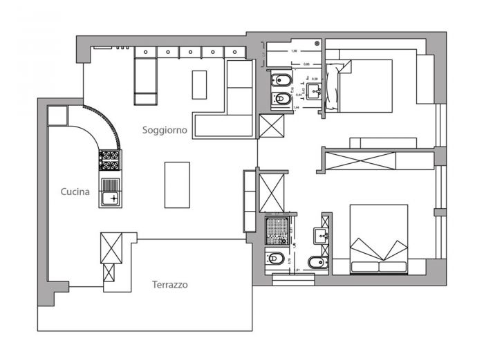
In questo tipo di progetto il cliente aveva necessità di realizzare l'intero spazio ex novo. La cucina si apre alla zona living filtrandola con opportune schermature dalla piccola area che interessa l'entrata, mentre la parete viene trattata con mattoncini in cotto a contrasto delle superfici levigate presenti.
La zona tv viene idealmente divisa dalla zona pranzo mentre arredi minimalisti ed allo stesso tempo eleganti si legano ai colori del pavimento in parquet. I mobili della casa e le lampade sopra il tavolo della zona pranzo sono stati progettati dal nostro studio in collaborazione con il proprio falegname di fiducia. Nel bagno più grande, anche se sempre di dimensioni ridotte è stato ricavato un ampio spazio doccia con luci per la cromoterapia.
Nel progetto, inoltre, è stata posta particolare attenzione all'illuminazione che ha avuto un'attenta analisi sia dal punto di vista tecnico che estetico.
Questo sito o gli strumenti terzi da questo utilizzati si avvalgono di cookie necessari al funzionamento ed utili alle finalità illustrate nella cookie policy. Se vuoi saperne di più o negare il consenso a tutti o ad alcuni cookie, consulta la cookie policy. Chiudendo questo banner, scorrendo questa pagina, cliccando su un link o proseguendo la navigazione in altra maniera, acconsenti all'uso dei cookie.