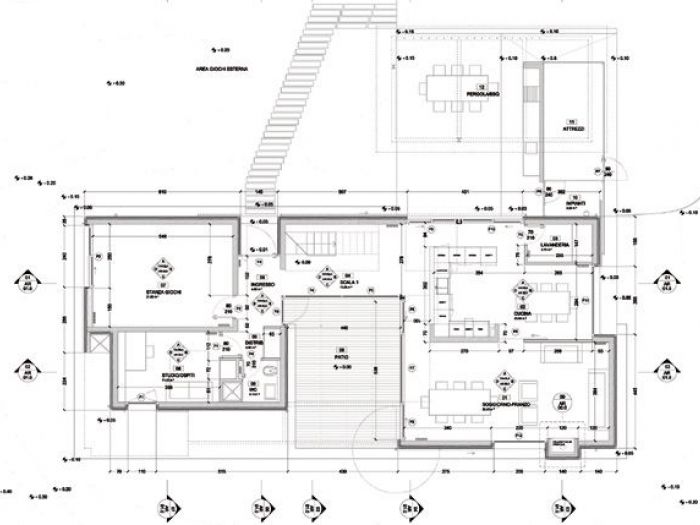
Mentre la disposizione generale della casa riflette le caratteristiche tipiche delle tradizioni e dei materiali locali. Le aperture nella facciata e la forma di alcuni spazi interni si basano sull'industria agricola tradizionale tipica della campagna toscana. L'uso del tetto a shed, l'intonaco esterno con i colori della terra, di una costruzione semplice e compatta, sono elementi tipici della cultura edilizia agricola in cui intendiamo fare riferimento. L'uso di grandi vetrate e porte scorrevoli di sicurezza in metallo per la loro protezione e acciaio zincato per la pergola esterna e il patio si riferiscono all'architettura della campagna circostante, dove i capannoni per lo stoccaggio sono così frequenti e spesso attaccati agli edifici tradizionali. I due temi si fondono per formare un'architettura tradizionale in termini di forme e materiali, come richiesto dal comune, ma contemporaneo in termini di tecnologie di costruzione e nell'uso dello spazio abitativo.
Questo sito o gli strumenti terzi da questo utilizzati si avvalgono di cookie necessari al funzionamento ed utili alle finalità illustrate nella cookie policy. Se vuoi saperne di più o negare il consenso a tutti o ad alcuni cookie, consulta la cookie policy. Chiudendo questo banner, scorrendo questa pagina, cliccando su un link o proseguendo la navigazione in altra maniera, acconsenti all'uso dei cookie.