Ristrutturazione di una casa con giardino a roma - Roma (RM)
9
517
2
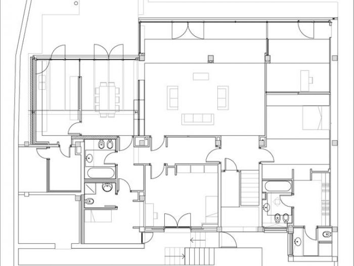
La casa incassata nel terreno sul lato nord confina a sud con un grande giardino.l’apertura di una ampia vetrata e la realizzazione di una serra in legno e acciaio e vetro consentono di portare all’interno degli spazi abitati la natura dello spazio aperto.una serie di schermi in legno di betulla e acciaio suddividono lo spazio continuo dell’appartamento individuando la zona della cucina, del pranzo, del soggiorno e dello studio che si aprono sul giardino. La pavimentazione in pietra di modica chiara si espande all’esterno e individua uno spazio per il pranzo all’aperto.
Questo sito o gli strumenti terzi da questo utilizzati si avvalgono di cookie necessari al funzionamento ed utili alle finalità illustrate nella cookie policy. Se vuoi saperne di più o negare il consenso a tutti o ad alcuni cookie, consulta la cookie policy. Chiudendo questo banner, scorrendo questa pagina, cliccando su un link o proseguendo la navigazione in altra maniera, acconsenti all'uso dei cookie.