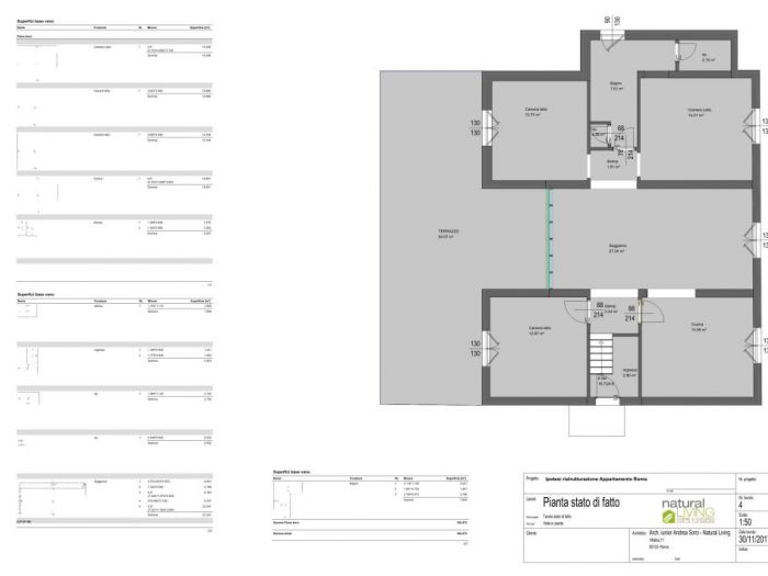
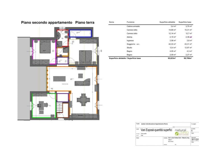
L'ipotesi di ristrutturazione ha preso in considerazione una nuova distribuzione degli ambienti, demolendo il muro adiacente alla cucina così creando un ambiente unico e più luminoso, nella prima camera si è pensato di realizzare un bagno interno e così anche nella seconda nella cui è presente anche una cabina armadio, una delle camere vicino al soggiorno è stata convertita in uno studio. I materiali scelti sono naturali, la pavimentazione è un parquet in rovere, la grande facciata vetrata nel soggiorno è stata pensata con un telaio in legno in rovere, come tutte le finestre dei vani, è previsto il rifacimento dell'intonaco optando per un intonaco in calce naturale.
Chiedi un preventivo gratuito aAndrea Sorci / Natural Living
INFORMATIVA
Questo sito o gli strumenti terzi da questo utilizzati si avvalgono di cookie necessari al funzionamento ed utili alle finalità illustrate nella cookie policy. Se vuoi saperne di più o negare il consenso a tutti o ad alcuni cookie, consulta la cookie policy. Chiudendo questo banner, scorrendo questa pagina, cliccando su un link o proseguendo la navigazione in altra maniera, acconsenti all'uso dei cookie.