Menu

Valter Arcari

Appartamento - nuova costruzione - Cologno Monzese (MI)

Numero di immagini
28
Visite ricevute
1.3K
Like ricevuti
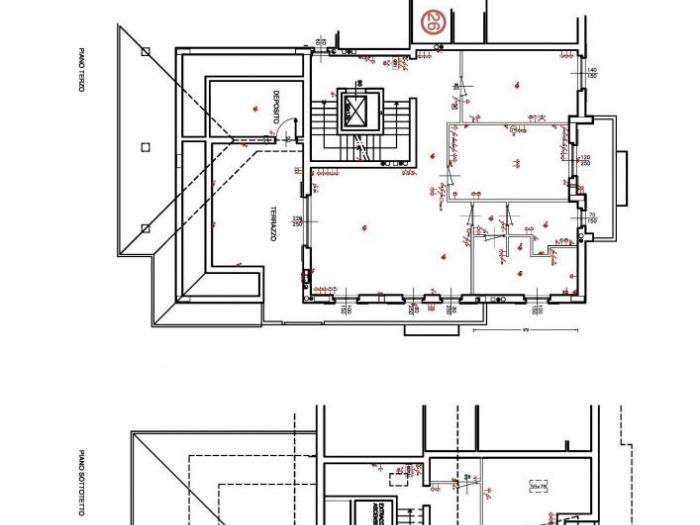
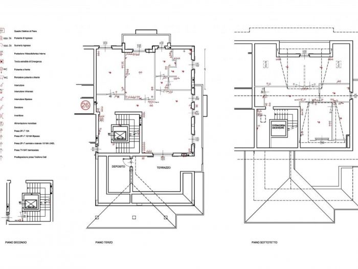
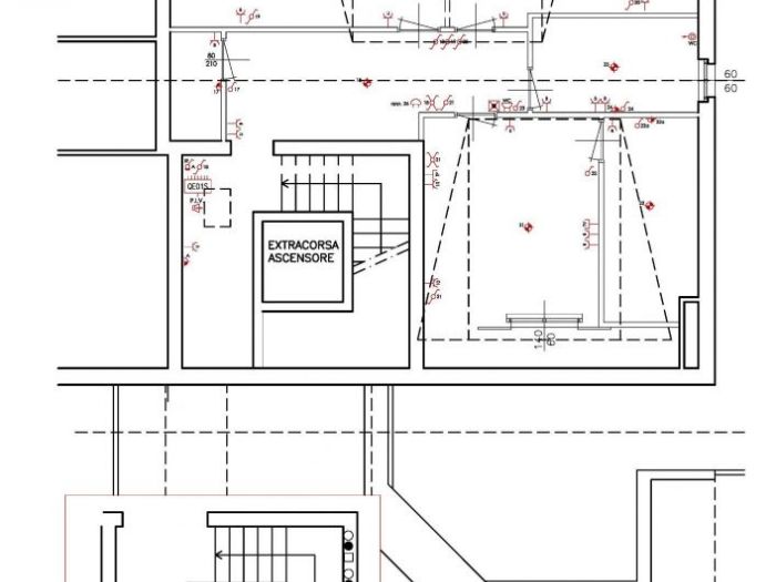
Attività di consulenza tecnica per la definizione delle varianti in opera relative ad una unità immobiliare duplex di nuova costruzione
 
Vedi gli altri progetti
 
Vai su
Invia una richiesta di lavoro a Valter Arcari
+ Allega file
Invia
 
Architetti vicino a te
Professionisti selezionati:
Cambia filtri
INVIA
Modifica filtri
Annulla
Chiedi un preventivo gratuito a Valter Arcari