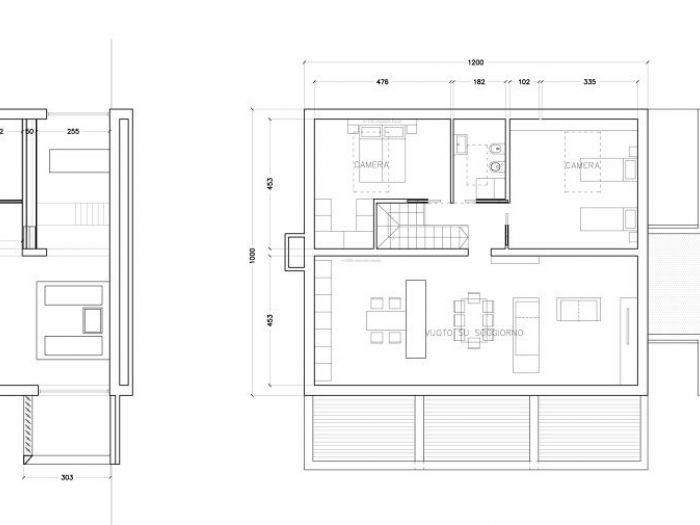
Villa privata | baldissero d'alba | 2016
Progetto architettonico - impiantistico - strutturale
In fase di costruzione
Arch. Daniele colalella, ing.silvia roasio
Impresa : lanzaro group srl
Questo sito o gli strumenti terzi da questo utilizzati si avvalgono di cookie necessari al funzionamento ed utili alle finalità illustrate nella cookie policy. Se vuoi saperne di più o negare il consenso a tutti o ad alcuni cookie, consulta la cookie policy. Chiudendo questo banner, scorrendo questa pagina, cliccando su un link o proseguendo la navigazione in altra maniera, acconsenti all'uso dei cookie.