Menu

Sergio Pascolo

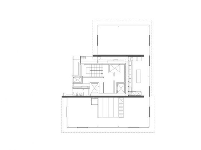
Milanpenthouse with roof terrace - Milano (MI)

Numero di immagini
10
Visite ricevute
613
Like ricevuti
Cliente: privato Progetto: 1999 Data di completamento: 2000 Area del sito: 700 mq Superficie totale: 170 mq Questo progetto riguarda la costruzione di un attico al livello del giardino sul tetto di un edificio residenziale di otto piani nel centro della città di milano. La struttura dell'attico è composta da due elementi costruttivi: un tetto piano la cui struttura snella assume la forma di una superficie bianca orizzontale e un perimetro verticale completamente trasparente, in vetro dal pavimento al soffitto. Punteggiato solo da sottili supporti in acciaio satinato, le pareti vetrate estendono l'interno verso la terrazza del giardino sul tetto e oltre, attraverso il paesaggio urbano di milano. Il punto focale del progetto è il lucernario centrale in vetro che copre lo spazio a doppia altezza che collega l'attico all'appartamento sottostante. Sia le pareti portanti che il tetto sono stati costruiti utilizzando pannelli prefabbricati in legno, mentre le colonne 6 × 6 cm sono in acciaio satinato. Per la costruzione della struttura della facciata in vetro sono stati utilizzati profili in acciaio spazzolato 6 × 4 cm. Supportano pannelli in vetro da 190 × 235 cm in entrambi i telai fissi e operativi. Le finestre operative sono motorizzate e controllate elettronicamente. In tutta la casa abbiamo applicato un pavimento "terrazzo" resinoso, fluido e applicato con il marmo nero del passo. Client: private Project: 1999 Completion date: 2000 Site area: 700 mq Total floor area: 170 mq This project concerns the construction of a penthouse at the rooftop garden level of an eight floors residential building in the city centre of milan. The penthouse structure consists of two building elements: a flat roof whose slender structure takes on the form of a horizontal white surface, and a completely transparent vertical perimeter, in glass from floor to ceiling. Punctuated only by slender supports in brushed steel, the glass walls extend the interior out to the rooftop garden terrace and beyond, across the cityscape of milan. The focal point of the project is the full glass central skylight covering the double-height space which connect the penthouse to the apartment below. Both bearing walls and roof were built using prefabricated wood panels, while the 6×6 cm columns are in brushed steel. 6×4 cm brushed steel sections were used to construct the framework of the glass facade. They support 190×235cm glass panels in both fixed and operable frames. The operable windows are motorized and controlled electronically. Throughout the home we apllied a seamless fluid-applied resinous „terrazzo“ flooring with pitch black belgian marble.
 
Vedi gli altri progetti
 
Vai su
Invia una richiesta di lavoro a Sergio Pascolo
+ Allega file
Invia
 
Architetti vicino a te
Professionisti selezionati:
Cambia filtri
INVIA
Modifica filtri
Annulla
Chiedi un preventivo gratuito a Sergio Pascolo