Menu

Sergio Pascolo

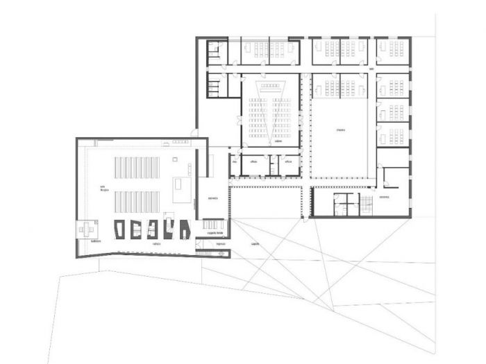
Avellinochurch and parisch of s. Maria del carmine - Avellino (AV)

Numero di immagini
10
Visite ricevute
498
Like ricevuti
Cliente: cei Concorrenza ristretta, 2007 Superficie costruita: 1.560 mq Due semplici volumi rettangolari stereometrici costituiscono la forma del chiostro dell'edificio ecclesiastico e del complesso parrocchiale. Sono disposte intorno a un portico in legno a forma di croce, che consente l'accesso alla canonica, alle sale e agli uffici, collegandoli alla chiesa e alla sagrestia. La necessità di posizionare l'ingresso sullo stesso lato dell'altare è stato il pretesto per infondere costruire con la stessa forza fisica, simbolica e il significato del percorso sacramentale. Una profonda cavità segnala l'ingresso al volume monolitico della chiesa. è contrassegnato da un portone in legno a tutta altezza che segnala l'inizio di un percorso e ci persuade ad entrare, conducendo in una delle navate d'ingresso. Questo è un grande atrio, uno spazio profondo e stretto, caratterizzato solo da solide pareti verticali che ci avvolgono e ci conducono nella sala. Una luce forte ci guida al battistero in fondo alla navata, che simboleggia l'inizio di una nuova vita in cristo e l'ammissione nella chiesa, rappresentando il suo corpo. Il fonte battesimale è la porta dei sacramenti e il primo passo verso la santa comunione; si trova quindi all'ingresso dell'ala liturgica dove si celebreranno i sacramenti. Lo spazio è ininterrotto, facile da attraversare e fluido. La luce ci mostra la via e le pareti dirigono la luce e sostengono la stanza; contengono nicchie liturgiche utilizzabili sia dalla navata che dalla sala. Lungo la via d'ingresso c'è una acquasantiera, la cui acqua è illuminata dalla luce naturale proveniente da una fessura di una colonna. Da qui raggiungiamo il battistero che conduce al "giardino dei fiori di dio", la sala principale, dove siamo accolti dall'immagine gioiosa di maria raffigurata in un dipinto sul muro di fronte all'ingresso. La sala è geometricamente semplice, lo spazio è ampliato dalla luce naturale, che filtra dall'alto e dai lati attraverso tagli sottili nel soffitto e grandi aperture a muro. La luce naturale aumenta progressivamente verso l'altare illuminato dalla luce del sud. Lo spazio interno della chiesa è definito dalle stesse colonne di supporto a parete che creano una composizione di aree di diversa importanza. Il centro dello spazio è l'attuale sala principale dove la comunità celebrante si raccoglie attorno all'altare. Il battistero, l'altare e l'ambone creano un triangolo visivo, mentre l'eucaristia è custodita nella cappella ferina adiacente all'altare. L'eucaristia è quindi separata dalla stanza principale, tuttavia la sua presenza può essere avvertita; la sua posizione è caratterizzata dalla decorazione sobria e preziosa e dalla luce intensa. Client: cei Restricted competition, 2007 Built area: 1.560 mq Two simple, rectangular stereometrical volumes make up the cloister shape of the church building and the parish complex. They are arranged around a wooden cross-shaped portico, which allows access to the rectory, the halls and offices, connecting them to the church and vestry.the need to place the entrance on the same side as the altar was the pretext to imbue the building with the same physical, symbolic strength and significance as the sacramental path.a deep cavity signals the entrance to the monolithic volume of the church. It is marked by a full-height wooden doorway which signals the beginning of a route and persuades us to enter, leading into one of the entrance naves. This is a large atrium, a deep and narrow space marked solely by solid vertical walls which envelop us and lead us to the hall. A strong light guides us to the baptistery at the end of the nave, which symbolises the beginning of a new life in christ and admission into the church, representing his body. The baptismal font is the doorway to the sacraments and the first step towards holy communion; it is therefore located at the entrance to the liturgical wing where the sacraments will be celebrated.the space is uninterrupted, easy to cross and fluid. The light shows us the way and the walls direct the light and support the room; they contain usable liturgical niches which can be seen both from the nave and the hall .along the entrance route there is a stoup, the water of which is lit by natural light coming from a gap in a column. From here we reach the baptistery which leads into “god’s flower garden”, the main hall, where we are greeted by the joyful image of mary depicted in a painting on the wall opposite the entrance. The hall is geometrically simple, the space is enlarged by natural light, which filters from above and from the sides through thin cuts in the ceiling and large wall openings. The natural light increases progressively towards the altar which is lit by southern light. The inside space of the church is defined by the same wall support columns which create a composition of areas of varying importance. The centre of the space is the actual main hall where the celebrating community gathers around the altar.the baptistery, altar and ambone create a visual triangle, while the eucharist is kept in the ferial chapel adjacent to the altar. The eucharist is therefore separated from the main room, but nonetheless its presence can be felt; its location is marked by the sober precious decoration and the intense light.
 
Vedi gli altri progetti
 
Vai su
Invia una richiesta di lavoro a Sergio Pascolo
+ Allega file
Invia
 
Architetti vicino a te
Professionisti selezionati:
Cambia filtri
INVIA
Modifica filtri
Annulla
Chiedi un preventivo gratuito a Sergio Pascolo