Edificio residenziale via lancetti • milano • 2000-2002 - Milano (MI)
5
560
1
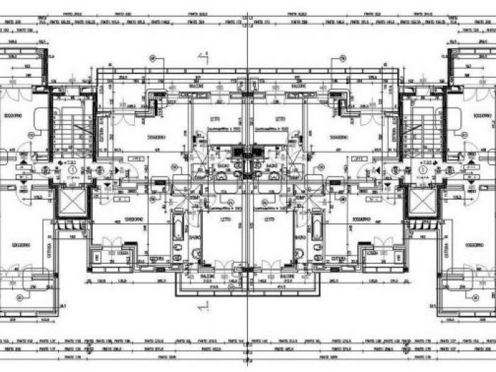
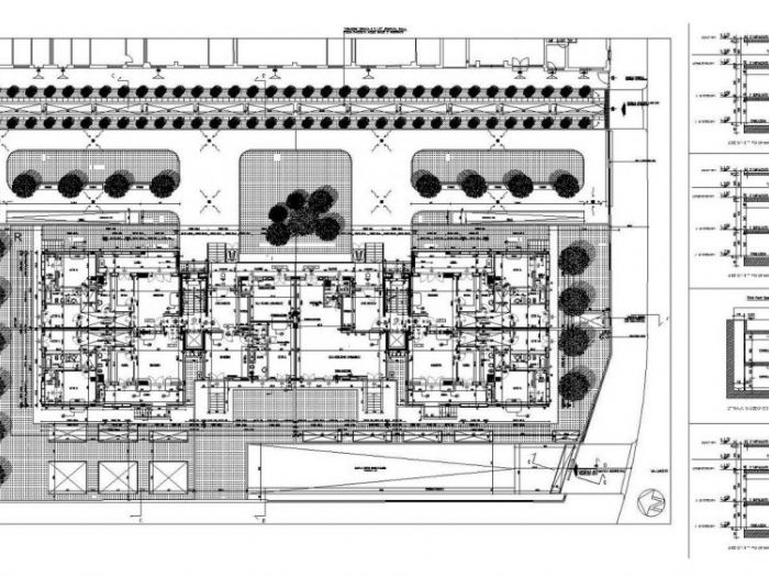
E' stato sviluppato il progetto di riqualificazione di un area industriale dismessa in via lancetti a milano, costruendo un nuovo edificio residenziale e realizzando dei loft nella palazzina uffici. Sono state seguite tutte le attività progettuali e le autorizzazioni edilizie.
Ruolo: sviluppo progetto preliminare, progetto di massima, presentazione pratiche edilizie, progetto esecutivo e direzione lavori.
Chiedi un preventivo gratuito aNca Nunzio Carraffa
INFORMATIVA
Questo sito o gli strumenti terzi da questo utilizzati si avvalgono di cookie necessari al funzionamento ed utili alle finalità illustrate nella cookie policy. Se vuoi saperne di più o negare il consenso a tutti o ad alcuni cookie, consulta la cookie policy. Chiudendo questo banner, scorrendo questa pagina, cliccando su un link o proseguendo la navigazione in altra maniera, acconsenti all'uso dei cookie.