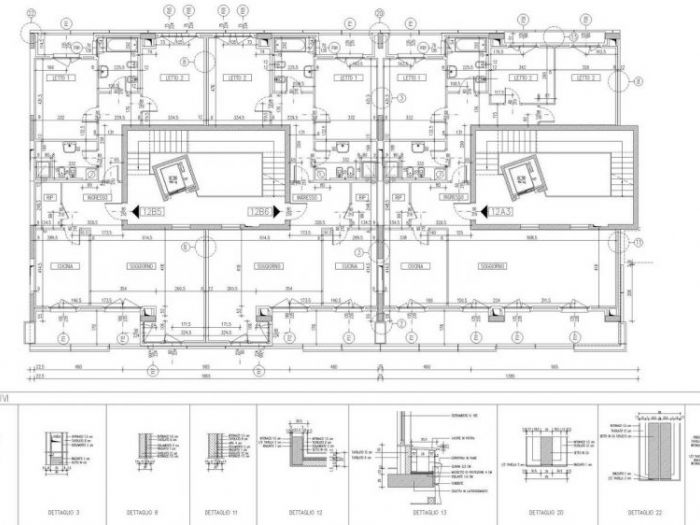
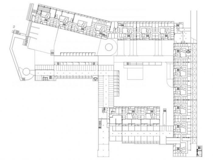
Complesso residenziale-commerciale-direzionale badoni • lecco • 1994-1998 - Milano (MI)
16
698
0
Collaborazione con lo studio malara associati. Mar 1994 - dic 1997 (45 mesi)
Realizzazione del “complesso residenziale - commerciale - direzionale badoni” in lecco su area industriale dismessa (consistenza 180.000 mc).
Sono state sviluppate tutte le fasi progettuali: piano di recupero, progetto di massima, autorizzazioni edilizie, progettazione esecutiva e direzione lavori.
Ruolo: corresponsabile progettazione architettonica-esecutiva e direzione lavori.
Chiedi un preventivo gratuito aNca Nunzio Carraffa
INFORMATIVA
Questo sito o gli strumenti terzi da questo utilizzati si avvalgono di cookie necessari al funzionamento ed utili alle finalità illustrate nella cookie policy. Se vuoi saperne di più o negare il consenso a tutti o ad alcuni cookie, consulta la cookie policy. Chiudendo questo banner, scorrendo questa pagina, cliccando su un link o proseguendo la navigazione in altra maniera, acconsenti all'uso dei cookie.