Appartamento a: sesto san giovanni ( residenza principale)
- superficie: 82 mq
- nucleo familiare: 2 persone
- ristrutturazione: completa
- attività sviluppata: progetto architettonico, progetto esecutivo, direzione lavori, arredi su misura
- rifacimenti: tavolati, pavimenti e sottofondi, porte e serramenti esterni
- rifacimenti impianti: idraulico, elettrico
- predisposizione: condizionamento, allarme
Scelte progettuali:
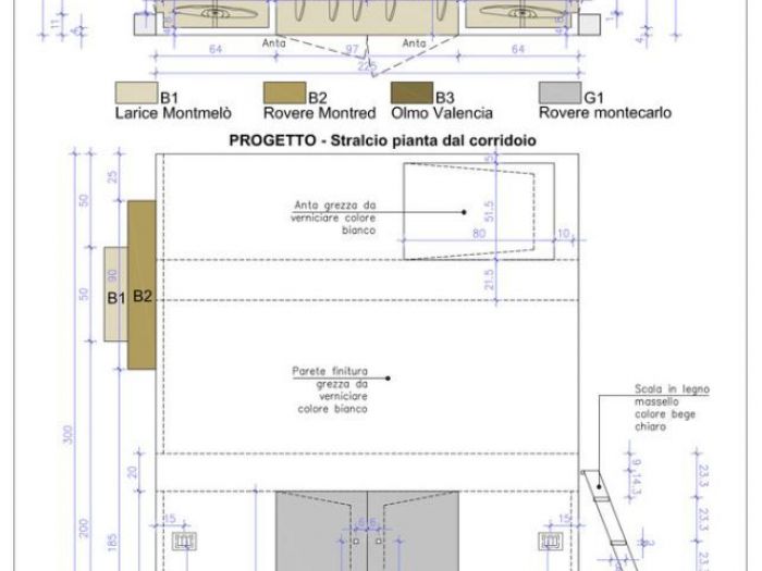
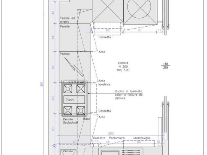
- nuova ridistribuzione interna locali
- cucina con accesso diretto dal soggiorno pranzo
- creazione di cabina armadio
- realizzazione letto a soppalco
Schede progetto
- piante stato di fatto e progetto
- schede con finiture e colori di riferimento
- schizzi di progetto
- rendering 3d
- foto della realizzazione
Chiedi un preventivo gratuito aNca Nunzio Carraffa
INFORMATIVA
Questo sito o gli strumenti terzi da questo utilizzati si avvalgono di cookie necessari al funzionamento ed utili alle finalità illustrate nella cookie policy. Se vuoi saperne di più o negare il consenso a tutti o ad alcuni cookie, consulta la cookie policy. Chiudendo questo banner, scorrendo questa pagina, cliccando su un link o proseguendo la navigazione in altra maniera, acconsenti all'uso dei cookie.