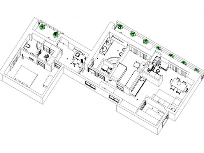
Dopo corsi e stage nel campo dell’ arredamento di interni, i nostri interior - designer sono in grado di progettare l’ architettura interna degli spazi abitativi e gli elementi d’ arredo, attraverso rappresentazioni grafiche. Ci occuperemo non solo del rilievo architettonico dell’ immobile e dell’ elaborazione della planimetria riportante la reale distribuzione degli ambienti e le loro effettive superfici, ma anche la formulazione di uno o più progetti preliminari che illustrino in maniera chiara ed esauriente le possibili trasformazioni dell’ immobile stesso sulla base dei vincoli esistenti (muri portanti, pilastri, travi, colonne fecali) e quanto altro possa limitare un eventuale ristrutturazione
Questo sito o gli strumenti terzi da questo utilizzati si avvalgono di cookie necessari al funzionamento ed utili alle finalità illustrate nella cookie policy. Se vuoi saperne di più o negare il consenso a tutti o ad alcuni cookie, consulta la cookie policy. Chiudendo questo banner, scorrendo questa pagina, cliccando su un link o proseguendo la navigazione in altra maniera, acconsenti all'uso dei cookie.