Menu

Marcello Calà

Spice hotel milano - Milano (MI)

Numero di immagini
17
Visite ricevute
603
Like ricevuti
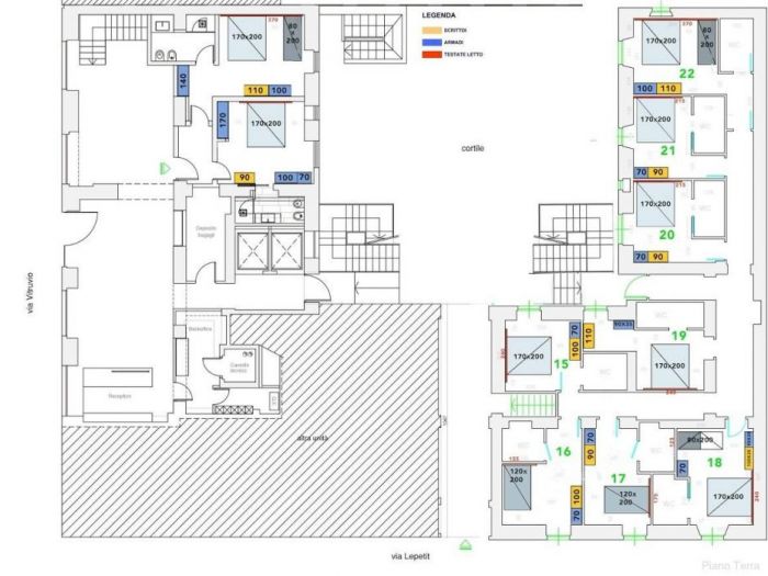
Lo spice hotel di via vitruvio inizia con le demolizioni nel vecchio hotel amadeus in disuso. Sono stati eseguiti subito sopralluoghi conoscitivi e saggi per effettuare un rilievo preciso dello stato di fatto, uno studio di fattibilita secondo gli obiettivi del cliente e un analisi qualitativa delle tecnologie costruttive utilizzate, delle strutture e delle vicende costruttive dell'edificio. Appurata l'impossibilita di mantenere i divisori interni preesistenti - per dimensione e distribuzione camere a norma di legge e adatte alle esigenze commerciali richieste - si è proceduto alle demolizioni e smaltimento degli stessi assieme a finiture, rivestimenti e impianti. La fase delle costruzioni interne - e contemporaneamente di demolizione del vetusto tetto ottocentesco a falde inclinate in legno e tegole dell'intero edificio a "c" per la successiva sopraelevazione in acciaio e vetro - è iniziata proprio tracciando e impostando la costruzione del sistema acustico di pareti divisorie a secco camera-camera, camera-servizi e iniziando a studiare i sistemi impiantistici e i rivestimenti. Contemporaneamente si è definito - in team col client, tecnici e interior designers - il mood degli interni, il sistema degli arredi su misura camera nelle varie tipologie, distribuzioni e servizi annessi. Demolito il soffitto preesistente, e definito il sistema costruttivo -con ingegneri e studi di architettura intervenuti per l'involucro, la sopraelevazione e i relativi permessi - si è proceduto al rinforzo del solaio e dei cordoli murari base delle sopraelevazione del quinto piano in tiranti, travi e pilastri in acciaio e lamiere grecate calcestruzzo armato alleggerito.
 
Vedi gli altri progetti
 
Vai su
Invia una richiesta di lavoro a Marcello Calà
+ Allega file
Invia
 
Architetti vicino a te
Professionisti selezionati:
Cambia filtri
INVIA
Modifica filtri
Annulla
Chiedi un preventivo gratuito a Marcello Calà