Menu

Leolab

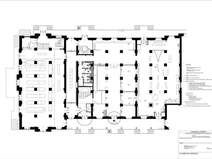
Lloyd - deposito a vista - Trieste (TS)

Numero di immagini
22
Visite ricevute
622
Like ricevuti
Risalgono al 2012 gli atti con cui regione friuli venezia giulia e comune di trieste stabilivano il trasferimento dei beni della collezione del lloyd al civico museo del mare. Sono 6.195 i beni della collezione del lloyd attualmente presenti negli inventari del museo del mare. In parte i reperti sono già stati sottoposti a minuzioso restauro grazie a un contributo della fondazione crt di trieste, molti sono stati presentati al pubblico in occasione della mostra “lloyd. Le navi di trieste nel mondo”, tenutasi nel 2016 presso la centrale idrodinamica del porto vecchio. Oggi il comune di trieste compie un ulteriore passo nell’ottica della valorizzazione dell’importante fondo in un contesto quanto mai appropriato. Nell’ambito del magazzino 26 del porto vecchio, fulcro del polo museale e sede del futuro museo del mare, viene allestita non una mostra, ma una sezione del museo stesso dedicata al lloyd. Un percorso pensato come un deposito a vista, destinato a far conoscere la ricchezza qualitativa e quantitativa del fondo, punto di partenza per ricerche e studi. Un itinerario permanente che vuole essere anche auspicio per ulteriori donazioni. L’allestimento accompagna il racconto con un sapiente uso degli spazi e delle strutture preesistenti: le grandi vetrate diventano schermi per retro-proiezioni, i corpi illuminanti punti luce per i numerosi reperti esposti. Sempre sulla scia di un utilizzo sostenibile parti degli allestimenti delle precedenti mostre “il mare dell’intimità” e “lloyd. Le navi di trieste nel mondo”, trovano, mescolate e riadattate, una nuova funzione nell’attuale percorso. I colori dominanti sono quelli delle navi: il nero, il rosso e il bianco, dosati per scandire il racconto. Passaggi marcati dalle tinte e resi leggeri dal movimento di alcuni particolari: l’oscillazione dei pannelli con le onde, sospesi al soffitto, il gonfiarsi di alcuni veli sotto la spinta di piccoli movimenti d’aria. Un percorso per temi che assicura la possibilità di una rotazione dei reperti esposti per consentire la più completa visione del patrimonio. Allo stesso modo, la didascalizzazione e anche gli apparati multimediali saranno variati e implementati nel tempo.
 
Vedi gli altri progetti
 
Vai su
Invia una richiesta di lavoro a Leolab
+ Allega file
Invia
 
Architetti vicino a te
Professionisti selezionati:
Cambia filtri
INVIA
Modifica filtri
Annulla
Chiedi un preventivo gratuito a Leolab