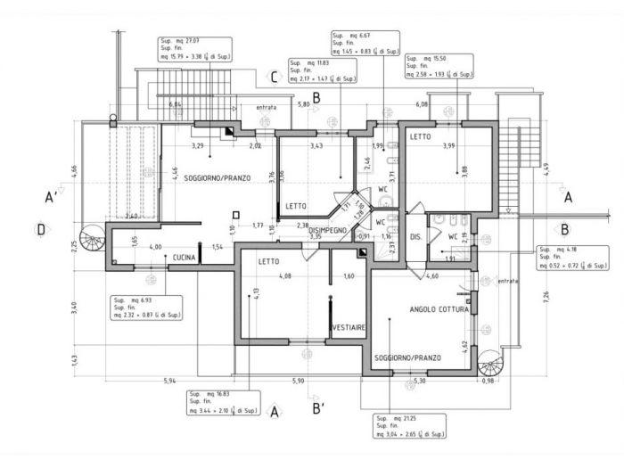
Soprelevazione di una villa unifamiliare nella zona “bene” della città. La posizione ottima del lotto di terreno permetteva una ottima vista mare, il progetto è stato pensato con il soggiorno come fulcro, visto che affaccia sul terrazzino dove era prevista la realizzazione di una grande vetrata così da avere una continuità interno/esterno.
Chiedi un preventivo gratuito aFlli, Emanuele E Massimiliano Ercolani
INFORMATIVA
Questo sito o gli strumenti terzi da questo utilizzati si avvalgono di cookie necessari al funzionamento ed utili alle finalità illustrate nella cookie policy. Se vuoi saperne di più o negare il consenso a tutti o ad alcuni cookie, consulta la cookie policy. Chiudendo questo banner, scorrendo questa pagina, cliccando su un link o proseguendo la navigazione in altra maniera, acconsenti all'uso dei cookie.