Menu

Enrico Girardi

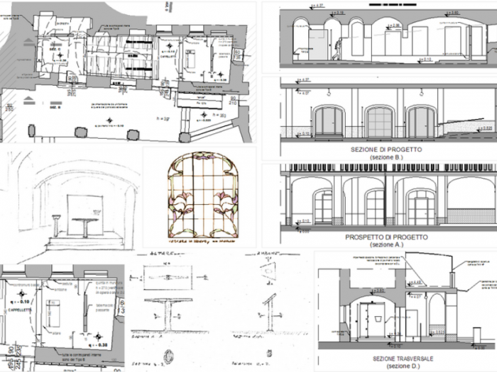
Convento di montanaro - Montanaro (TO)

Numero di immagini
22
Visite ricevute
990
Like ricevuti
Si tratta della ristrutturazione e del recupero dell’ala nord del convento di montanaro - sotto tutela dei beni culturali ecclesiastici e dei beni architettonici del piemonte - e della realizzazione di una cappella nell’ala est oltre a svariati adeguamenti interni nell’ala ovest. Si è trattato di un lavoro piuttosto complesso sia per le ingenti dimensioni, sia per il contesto religioso-conventuale; l'impianto del corpo di fabbrica è stimato risalire al 1700 e nel corso degli anni subì svariati interventi. Ho riorganizzato interamente gli spazi interni con la zona living e cucina al piano terreno, quella degli uffici al primo livello, la zona notte al secondo livello, mentre il sottotetto piuttosto basso è stato sfruttato per l'impiantistica (uta a servizio di tutti gli ambienti comuni, impianto a pannelli solari, rifacimento della ct). La vecchia autorimessa è stata ripulita mettendo in luce le belle volte in mattoni pieni ed ho realizzato un cappelletta a servizio delle suore: lo stile adottato è di ispirazione liberty, e ho disegnato tutto in dettaglio (dai banconi, al pulpito, alle vetrate); la parte impiantistica è nascosta a pavimento (riscaldamento compreso, tutto a pavimento in tutti gli ambienti). La muratura originaria è stata rispettata facendo uso di una serie di quinte distaccate dalla stessa. Dati di progetto: O progettazione, direzione dei lavori, coordinamento della sicurezza in fase di progettazione e di realizzazione delle opere O committente: opera pia “ritiro figlie di carità”, ref. Madre superiora suor stefanina O importo dei lavori: circa 900.000 €, esclusi gli impianti O indicazione dello stato attuale: realizzato O incarico esclusivo: arch. Enrico girardi
 
Vedi gli altri progetti
 
Vai su
Invia una richiesta di lavoro a Enrico Girardi
+ Allega file
Invia
 
Architetti vicino a te
Professionisti selezionati:
Cambia filtri
INVIA
Modifica filtri
Annulla
Chiedi un preventivo gratuito a Enrico Girardi