Menu

Daniela Morello

Residenza plurifamiliare su più piani - Lecce (LE)

Numero di immagini
10
Visite ricevute
1.2K
Like ricevuti
Archisio - Daniela Morello - Progetto Residenza plurifamiliare su pi piani
Il progetto si compone di un piano interrato con la collocazione dei relativi box auto. Al piano stradale sono stati inseriti 2 appartamenti e due locali commerciali. Al primo piano ci sono tre appartamenti tutti di differenti metrature e al secondo piano sono stati collocati due piccoli appartamenti con annesso ampio terrazzo. Il complesso è stato dotato di impianto fv e collettori solari posti sul tetto e anche di un impianto di recupero acque.

Ristrutturazione d'interni - Lecce (LE)

Numero di immagini
7
Visite ricevute
812
Like ricevuti
Archisio - Daniela Morello - Progetto Ristrutturazione dinterni
Il progetto consiste nella suddivisione di un'unico appartamento in due unità abitative, rispettivamente con due camere da letto, soggiorno\cucina, almeno un bagno. Oltre alla pianta del progetto è stato fornita la pianta arredata, la pianta delle costruzioni e demolizioni e una tavola con gli arredi principali.

Ristrutturazione apparamento - Lecce (LE)

Numero di immagini
8
Visite ricevute
944
Like ricevuti
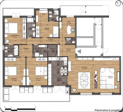
Archisio - Daniela Morello - Progetto Ristrutturazione apparamento
Il progetto consisteva nel riordino interno di un appartamento con la creazione di 4 camere da letto, 3 bagni, una lavanderia, un piccolo studio, cucina, zona pranzo e soggiorno. Veniva chiesto anche di indicare i principali arredi pensati per gli ambienti principali.

Unione di due appartamenti - Lecce (LE)

Numero di immagini
3
Visite ricevute
786
Like ricevuti
Archisio - Daniela Morello - Progetto Unione di due appartamenti
In un palazzo d'epoca viene chiesto di unire due appartamenti mantenendo i due ingressi esistenti. L'appartamento veniva chiesto con due camerette, una camera matrimoniale tutte e tre fornite di bagno privato, una camera per gli ospiti, zona lavanderia, studio, cucina, sala da pranzo e soggiorno.

Decorazioni per interni - Lecce (LE)

Numero di immagini
4
Visite ricevute
900
Like ricevuti
Archisio - Daniela Morello - Progetto Decorazioni per interni
Vasi design per interni, di varie dimensioni e decorazioni
Vai su
Invia una richiesta di lavoro a Daniela Morello
+ Allega file
Invia
 
Architetti vicino a te
Professionisti selezionati:
Cambia filtri
INVIA
Modifica filtri
Annulla
Chiedi un preventivo gratuito a Daniela Morello