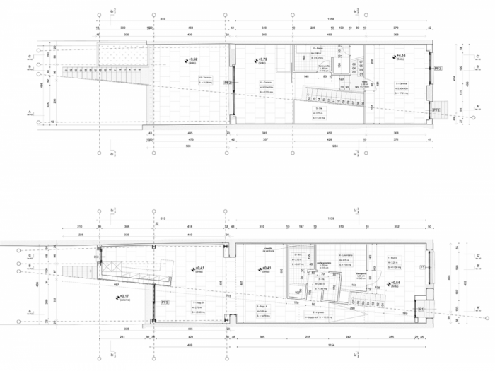
Il progetto consiste nella ristrutturazione e ampliamento di un edificio esistente nel centro di viareggio. Pensiamo agli elementi funzionali come a volumi in grado di arricchire lo spazio e di avere molteplici funzioni. La cucina diventa una scala eterna che si unisce al giardino e al balcone e la lavanderia è fusa con le scale interne per diventare l'elemento che risparmia il "pubblico" e la parte più privata della casa. La scelta del materiale segue la tradizione della città ma in modo funzionale, tutte le scelte strutturali sono nel modo di dare il massimo della flessibilità degli spazi interni.
Questo sito o gli strumenti terzi da questo utilizzati si avvalgono di cookie necessari al funzionamento ed utili alle finalità illustrate nella cookie policy. Se vuoi saperne di più o negare il consenso a tutti o ad alcuni cookie, consulta la cookie policy. Chiudendo questo banner, scorrendo questa pagina, cliccando su un link o proseguendo la navigazione in altra maniera, acconsenti all'uso dei cookie.