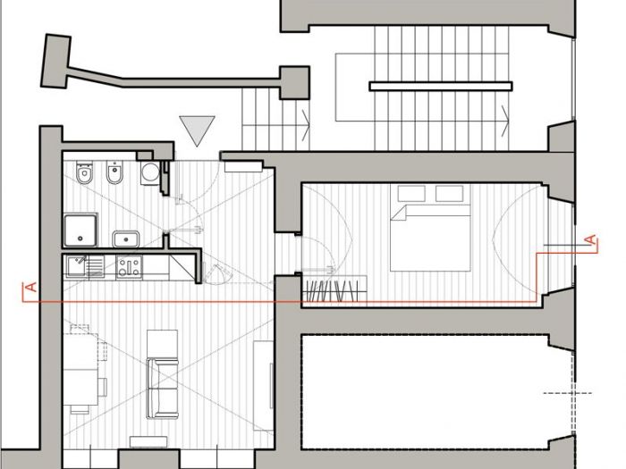
Casa gir и il progetto e la ristrutturazione di un piccolo appartamento al piano ammezzato nel centro di torino per una single. Il progetto distributivo ruota attorno alla formazione del bagno e della zona ingresso che funge da bussola distributiva per accedere alla zona giorno e alla camenra da letto.
Questo sito o gli strumenti terzi da questo utilizzati si avvalgono di cookie necessari al funzionamento ed utili alle finalità illustrate nella cookie policy. Se vuoi saperne di più o negare il consenso a tutti o ad alcuni cookie, consulta la cookie policy. Chiudendo questo banner, scorrendo questa pagina, cliccando su un link o proseguendo la navigazione in altra maniera, acconsenti all'uso dei cookie.