Menu

Carlo Becciu

Casa fe, torino - Torino (TO)

Numero di immagini
6
Visite ricevute
768
Like ricevuti
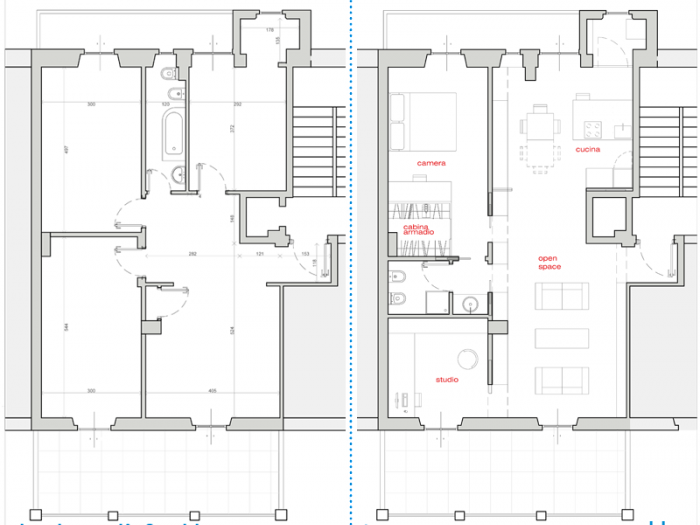
Il progetto “casa fe” è frutto della richiesta della committenza di trasformare uno studio odontotecnico posto all’ultimo piano di una palazzina del quartiere crocetta a torino in abitazione secondo le esigenze della giovane proprietaria. L’appartamento si presenta con la classica distribuzione anni 60, con un ingresso di distribuzione dal quale si accede ai vari ambienti. Le richieste della committenza sono state: - avere un ambiente il più possibile più aperto - fornire la casa di un ambiente camera da letto e di uno da adibire a studio - fornire una sistemazione adeguata ai molti libri della proprietaria la soluzione scelta è stata quella formare un unico ambiente tra soggiorno e cucina con una parete scorrevole in grado di separare quest’ultimo locale. Questa soluzione permette inoltre di prolungare l’ambiente verso l’ampio terrazzo che è una delle caratteriste dell’appartamento. La camera è stata dotata quindi di una cabina armadio e l’accesso ai servizi igienici avviene ora da uno spazio di distribuzione che consente la privicy e lo separa dall’ambiente soggiorno che così ampio bene si presta per ricever gli ospiti, anche questas una richiesta della propietaria. I libri trovano sistemazione nella lunga parete che attraversa il soggiorno in continuità con la cucina. Con le pareti scorrevoli aperte questa soluzione aumenta l’effetto di unità degli ambienti, favorito anche dal posizionamento dell’area dedicata alla preparazione e cottura dei cibi che risulta defilata e “nascosta” dalla presenza del muro del vano ascensore condominiale.
 
Vedi gli altri progetti
 
Vai su
Invia una richiesta di lavoro a Carlo Becciu
+ Allega file
Invia
 
Architetti vicino a te
Professionisti selezionati:
Cambia filtri
INVIA
Modifica filtri
Annulla
Chiedi un preventivo gratuito a Carlo Becciu