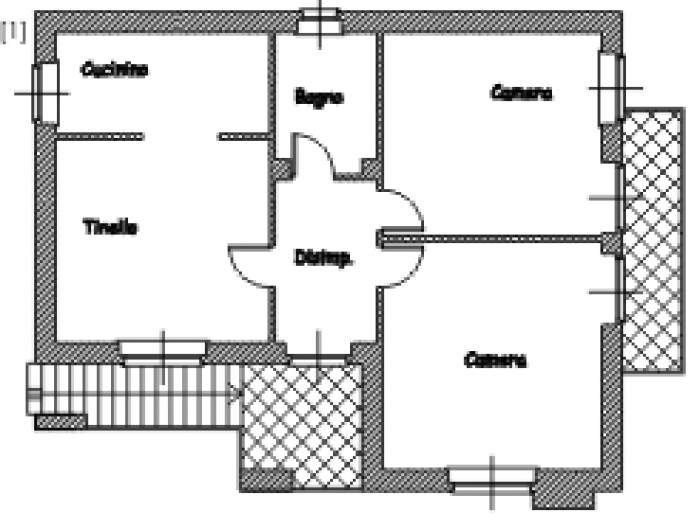
Dall'esigenza di ampliare l'edificio a causa dell'aumento del nucleo famigliare nasce il progetto di riqualificazione di una casa unifamiliare costruita negli anni '60.
La composizione complessiva viene totalmente rivisionata ed ampliata dando un nuovo aspetto esterno.
Le nuove facciate vengono rivestite con paramano tipico dell'edilizia piemontese.
Grazie ad un'accurato studio degli ambienti interni grazie anche alla volontà di una committenza molto attenta ai materiali utilizzati, crea spazi moderni e luminosi.
Chiedi un preventivo gratuito aArchitetto Igor Flis
INFORMATIVA
Questo sito o gli strumenti terzi da questo utilizzati si avvalgono di cookie necessari al funzionamento ed utili alle finalità illustrate nella cookie policy. Se vuoi saperne di più o negare il consenso a tutti o ad alcuni cookie, consulta la cookie policy. Chiudendo questo banner, scorrendo questa pagina, cliccando su un link o proseguendo la navigazione in altra maniera, acconsenti all'uso dei cookie.