Interni a peschiera borromeo, milano - Milano (MI)
5
649
2
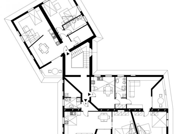
Il progetto per il recupero del sottotetto prevede la totale conservazione della struttura primaria e secondaria del tetto attuando quegli accorgimenti tecnici e tecnologici “minimi” per rendere agevole il sottotetto nel rispetto della sua configurazione originaria. Se, infatti, le suddivisioni interne seguono il più possibile l’andamento della struttura in senso conservativo, “piegandosi” solo laddove è stato ritenuto più strettamente necessario, la visione esterna, invece, risulta trasformata dalla presenza di tagli della copertura, per la formazione di terrazze e da una serie di “cappuccine” più o meno mimetizzate che tendono a riprendere i vuoti o i pieni delle facciate sottostanti. Il progetto prevede la realizzazione di tre alloggi. Le cappuccine sono pensate in legno e interamente ricoperte da una lamiera zincata color bruno testa di moro; l’interno prevede che tutte le pareti siano intonacate e imbiancate, mentre tutte le orditure rimarranno a vista.
Questo sito o gli strumenti terzi da questo utilizzati si avvalgono di cookie necessari al funzionamento ed utili alle finalità illustrate nella cookie policy. Se vuoi saperne di più o negare il consenso a tutti o ad alcuni cookie, consulta la cookie policy. Chiudendo questo banner, scorrendo questa pagina, cliccando su un link o proseguendo la navigazione in altra maniera, acconsenti all'uso dei cookie.