Menu

Arch Studio

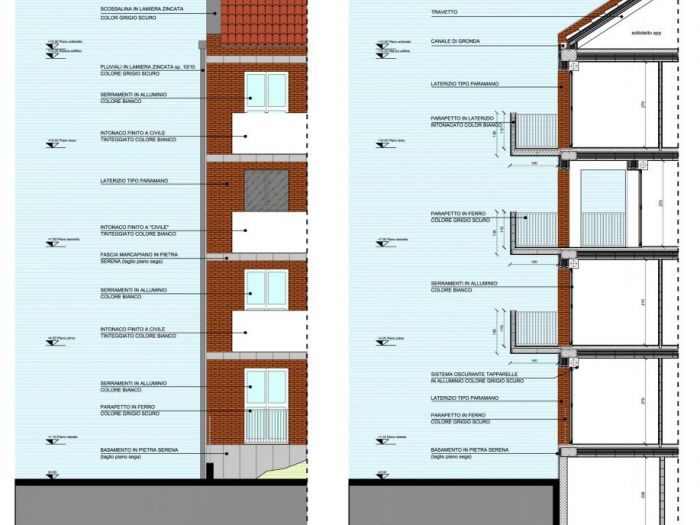
Edificio residenziale a cesano m. Milano - Cesano Maderno (MB)

Numero di immagini
5
Visite ricevute
509
Like ricevuti
L’area di progetto è situata nella zona che si estende ad est della superstrada milano – meda (ss 35). L’edificio in progetto (previa demolizione di quello esistente) si allinea, sul fronte strada, all’edificio posto ad ovest e sviluppa 380,50 mq. Di slp, suddivisa n. 7 unità immobiliari distribuiti in quattro piani fuori terra per un altezza in gronda di 13,20 ml. I posti auto, corrispondenti ad ogni unità immobiliare, sono stati ricavati sia a raso che nel piano seminterrato soddisfacendo così la legge 122/89. Le unità immobiliari in progetto sono distinte in due per piano ad esclusione di un’unica unità che occupa l’intero secondo piano. Le due unità che si trovano all’ultimo piano sono collegate, tramite una scala interna, al sottotetto spp sovrastante. Le unità site al piano rialzato sono contraddistinte per la presenza di un giardino di proprietà. La struttura portante dell’edificio è costituita da uno schema di travi e pilastri in c.a. E i solai sono realizzati in travi e pignatte. Tutte le pareti sono realizzate con un pacchetto atto al contenimento energetico e all’isolamento richiesto dalla legge. Perimetrale esterno: costituito da una muratura esterna di cm. 30 in laterizio a “scudo chiuso”, assemblata ad un’ altra muratura interna di cm. 8 sempre in laterizio. Divisori tra gli alloggi: costituiti da una muratura doppia di cm. 12 di spessore interrotta da un pannello isolante di cm. 5. La finitura delle pareti perimetrali è in laterizio faccia a vista è quella dei parapetti dei balconi e logge intonaco per esterni tinteggiato di bianco. I serramenti, anch’essi con opportuno vetro camera per soddisfare i requisiti di legge, sono in alluminio colore bianco, mentre gli oscuranti (taparelle in alluminio) sono di colore grigio. Grigie infine sono tutte le finiture relative alle lattonerie e al basamento, previsto in pietra. La struttura della copertura, costituita da un tetto a falde comprese da due muri perimetrali, è realizzata in legno lamellare, adeguatamente isolata e impermeabilizzata e rifinita in tegole tipo portoghesi.
 
Vedi gli altri progetti
 
Vai su
Invia una richiesta di lavoro a Arch Studio
+ Allega file
Invia
 
Architetti vicino a te
Professionisti selezionati:
Cambia filtri
INVIA
Modifica filtri
Annulla
Chiedi un preventivo gratuito a Arch Studio